Charmant en Ruim Dubbelfamiliehuis in Moste pri Komendi

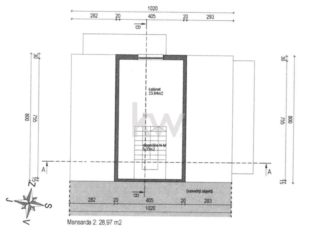
Ontdek dit prachtige dubbelfamiliehuis in het rustige en goed onderhouden dorp Moste pri Komendi. Met een totale oppervlakte van 169,7 m² en een perceel van 219 m², biedt deze woning een ideale leefruimte voor gezinnen. Het huis, gebouwd in 2009, beschikt over vier ruime slaapkamers, twee moderne badkamers en een lichte zolder die momenteel als kantoor wordt gebruikt. De woning is voorzien van drie balkons, een terras en een tuin met een schuur voor opslag. Elke verdieping is uitgerust met airconditioning en vloerverwarming in de badkamer en op de eerste verdieping. Er zijn drie parkeerplaatsen beschikbaar, waarvan twee onder een carport. De locatie biedt snelle toegang tot de snelweg en de luchthaven Brnik, en is omgeven door groene gebieden die uitnodigen tot ontspanning in de natuur. In de nabijheid vindt u alle benodigde infrastructuur voor comfortabel wonen, zoals winkels en restaurants. De regio Ljubljana-okolica staat bekend om zijn prachtige landschappen en biedt tal van toeristische attracties, waaronder wandel- en fietspaden.
Locatie
Deel dit object
Tags
Pages
Bedrijfsgegevens
T: +31 (0)6-41416144
E: info@slovenievastgoed.nl


