Luxe nieuwbouw appartement in Rudnik, Ljubljana

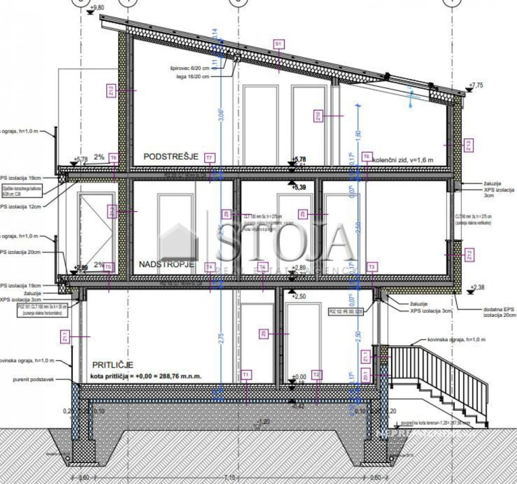
Ontdek dit prachtige 5-kamer appartement in een gloednieuw en modern complex van vier tweewoonstgebouwen in Rudnik. Met een royale oppervlakte van 143,07 m² biedt deze woning een ruime indeling met een begane grond, eerste verdieping en zolder. Geniet van de luxe van een eigen terras, balkon en twee privé parkeerplaatsen. De locatie biedt een perfecte balans tussen stedelijk leven en natuurlijke rust, met de bruisende binnenstad op slechts enkele minuten fietsen. Nabijgelegen voorzieningen omvatten scholen, kinderdagverblijven, en het winkelcentrum Supernova. De moderne architectuur en energiezuinige constructie maken dit appartement tot een droomhuis dat privacy en comfort biedt. Mis deze unieke kans niet en plan vandaag nog een bezichtiging!



