Luxe rijtjeshuis in Celje met moderne architectuur

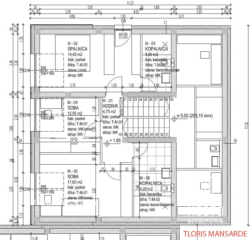
Op een van de meest gewilde en rustige locaties in Celje staat een luxe eengezins-rijtjeshuis te koop, dat naar verwachting eind 2025 voltooid zal zijn. De locatie combineert alle voordelen van kwalitatief wonen – een rustige omgeving, uitstekende zonlichtinval en snelle toegang tot de snelweg en essentiële infrastructuur zoals scholen, kinderdagverblijven, winkels en gezondheidszorg. Het huis is ontworpen in een moderne architectonische stijl en biedt een doordachte indeling van de ruimtes, die comfort, functionaliteit en een hoge mate van privacy garandeert. Het huis grenst aan één aangrenzende eenheid, maar de verschoven plattegrond creëert een gevoel van privacy en zelfstandigheid. Belangrijke voordelen zijn onder andere de moderne architectuur en hoogwaardige materialen, energie-efficiënte bouw die lage operationele kosten en een aangenaam woonklimaat het hele jaar door garandeert, en de mogelijkheid om de binnenindeling en materiaalkeuze aan te passen aan uw wensen. De zuidwestelijke oriëntatie zorgt voor veel natuurlijk licht gedurende de dag. De bovenste verdieping omvat slaapkamers en twee aparte badkamers, terwijl de onderste twee verdiepingen zijn gewijd aan woonruimtes, ontspanning en sociale bijeenkomsten. Het huis is ideaal voor gezinnen of koppels die op zoek zijn naar een moderne, energiezuinige woning op een uitstekende locatie met de mogelijkheid om het interieur naar eigen smaak aan te passen. De woning bevindt zich in een rustige en groene woonwijk die de voordelen van stadsleven combineert met de nabijheid van de natuur. De locatie biedt snelle toegang tot de snelweg (ongeveer 2,7 km) en het stadscentrum (ongeveer 2,4 km), terwijl het tal van mogelijkheden biedt voor recreatie en ontspanning in de natuur. In de directe omgeving bevindt zich alle benodigde infrastructuur, zoals een basisschool (ongeveer 550 m), een kinderdagverblijf (ongeveer 650 m), en een bushalte (ongeveer 5 minuten lopen). Voor natuurliefhebbers en actieve levensstijl is de locatie een ideale uitvalsbasis voor wandelingen, hardlopen of fietsen langs nabijgelegen paden, zoals de route naar het Šmartinsko-meer.



