Moderne en energiezuinige nieuwbouwwoning in Ješenca

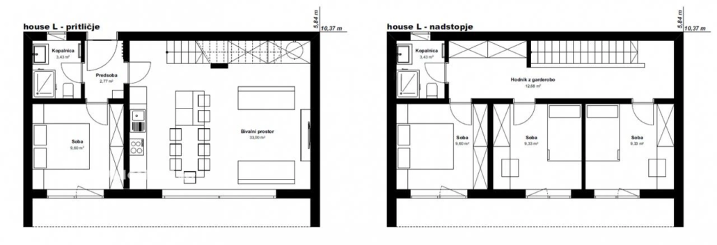
Ontdek deze bijna voltooide, moderne en energiezuinige vrijstaande woning in Ješenca, ideaal voor comfortabel en veilig wonen. Deze nieuwbouwwoning, beschikbaar vanaf oktober 2025, biedt een ruime woonoppervlakte van 120,3 m² en een perceel van 421 m². De woning is uitgerust met geavanceerde verwarmings-, koelings- en ventilatiesystemen, waaronder vloerverwarming en een warmtepomp. De woning beschikt over 4 slaapkamers, 2 badkamers, een balkon, een terras en een tuin. De locatie in de regio Podravska, nabij Maribor, biedt gemakkelijke toegang tot voorzieningen zoals scholen, kinderdagverblijven, recreatiegebieden en openbaar vervoer. Geniet van de nabijheid van de natuur en de rustige omgeving, ideaal voor gezinnen en investeerders. Mis deze kans niet om een nieuw hoofdstuk te beginnen in een moderne en functionele woning.



