Moderne vrijstaande woning in Zabovci, nabij Ptuj

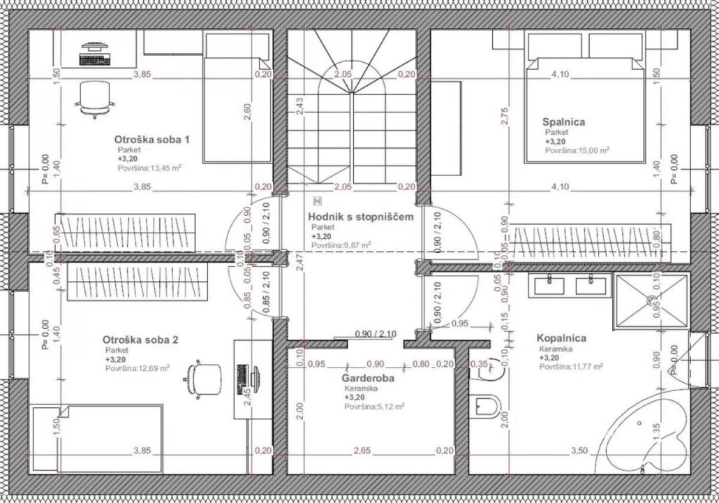
Deze moderne vrijstaande woning is gelegen in het pittoreske dorpje Zabovci, slechts enkele minuten rijden van de stad Ptuj. De nabijheid van het Ptuj-meer biedt tal van ontspanningsmogelijkheden op wandelpaden en een ontsnapping aan het drukke stadsleven. Ondanks de idyllische ligging in een natuurlijke omgeving, biedt de locatie snelle toegang tot alle belangrijke infrastructuur. In de directe omgeving vindt u een school, kleuterschool, winkel, postkantoor, bibliotheek en andere voorzieningen. De woning is slechts 2 km verwijderd van de gemeente Markovci en 3 km van de stad Ptuj en de snelweg. De begane grond van het huis omvat een hal, technische ruimte, badkamer, benutbare ruimte onder de trap; een open woonkamer, eetkamer en keuken met toegang tot het terras en de tuin. Verder is er een ruime studeerkamer. De trap leidt naar de zolder, waar drie slaapkamers, een kleedkamer en een ruime badkamer zijn ingericht. Het huis is gebouwd met traditionele baksteen, met een gewapend betonnen plaat van 25 cm dikte, en heeft hoogwaardige PVC-ramen met driedubbele beglazing. De gevel is geïsoleerd met 16 cm EPS en de woning is voorzien van een warmtepomp. Het perceel van 500 m² is volledig vlak, omheind en aangelegd met gras en bestrating rondom het huis. Dit is een uitstekende kans voor iedereen die op zoek is naar een kwalitatieve woonomgeving met een functioneel ontwerp en lage operationele kosten. De woning is klaar voor afwerking, waarbij u de materialen voor de afwerking kunt kiezen binnen een vooraf afgesproken prijsklasse.



