Charmant 2-kamer appartement in Grosuplje

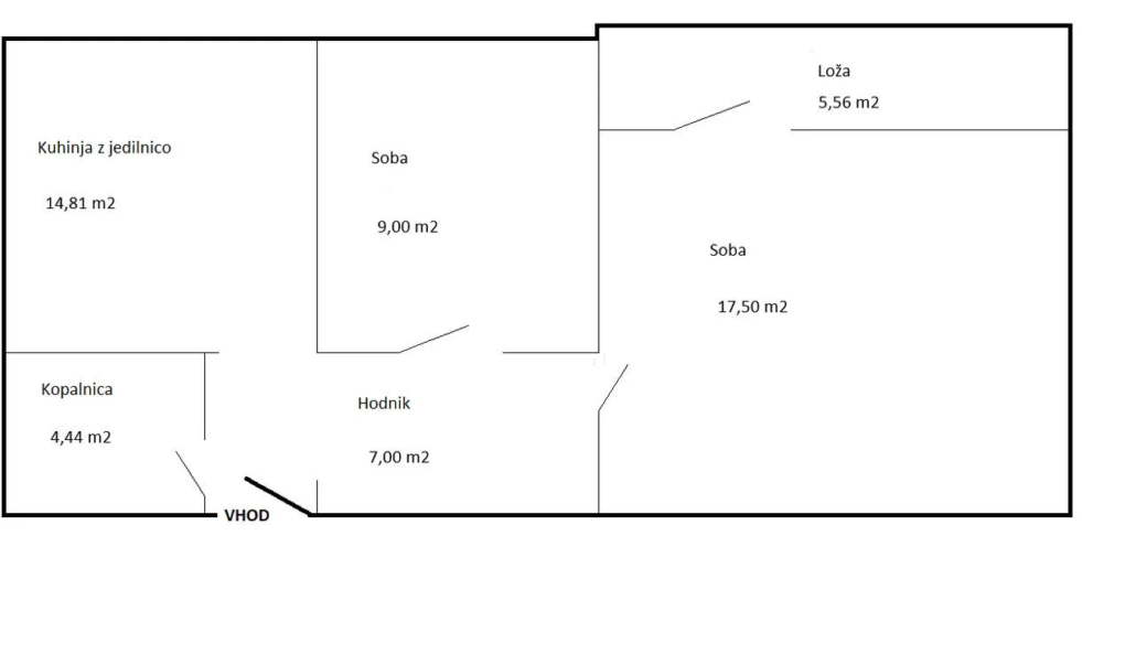
Dit prachtige 2-kamer appartement in Grosuplje biedt een unieke kans voor zowel investeerders als bewoners. Gelegen in een vier verdiepingen tellend gebouw, bevindt het appartement zich op de tweede verdieping en beslaat een oppervlakte van 58,2 m². Het appartement is in 2014 volledig gerenoveerd en biedt moderne voorzieningen zoals centrale verwarming, optisch internet en een intercomsysteem. De functionele indeling omvat een ruime woonkamer, een keuken, een slaapkamer, een badkamer met toilet, een hal en een loggia. De nabijheid van essentiële voorzieningen zoals scholen, kinderdagverblijven, winkels en openbaar vervoer maakt het een ideale locatie voor gezinnen. Grosuplje, gelegen in de regio Ljubljana-okolica, biedt een rustige woonomgeving met gemakkelijke toegang tot de stad Ljubljana. De regio staat bekend om zijn prachtige natuur en recreatiemogelijkheden, waaronder wandel- en fietspaden. Het appartement is ook gunstig gelegen nabij de snelweg, waardoor het een uitstekende keuze is voor forenzen.



