Exclusief Driekamerappartement in Trnovo

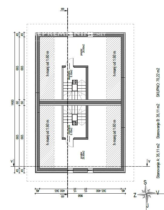
In het hart van het prestigieuze Trnovo verrijst de moderne residentie ‘Vila Mestni log’, die uitblinkt in architectuur en hoogwaardige materialen. Dit driekamerappartement biedt een perfecte balans tussen stedelijk comfort en rustige woonomgeving, op slechts een steenworp afstand van het stadscentrum en groene recreatiegebieden. De woning beschikt over hoge plafonds, grote glazen oppervlakken en een ruim balkon. De hoogwaardige afwerking omvat parketvloeren, grote keramische tegels, vloerverwarming, driedubbele beglazing met elektrische zonwering en een slim installatiesysteem voor volledige controle over uw huis. De residentie biedt veiligheid en privacy, met een kelderberging, eigen parkeerplaatsen, een verwarmde oprit en een zorgvuldig aangelegde buitenruimte met een kinderspeelplaats. Trnovo is een gewilde wijk in Ljubljana, bekend om zijn nabijheid tot het stadscentrum en de groene omgeving. De regio Ljubljana biedt tal van toeristische attracties, zoals het kasteel van Ljubljana en de nabijgelegen Tivoli Park. In de buurt vindt u diverse winkels, restaurants en uitstekende vervoersmogelijkheden.


