Luxe nieuwbouw appartement in Ljubljana Bežigrad

€635.000
📍 Locatie: Kranjčeva ulica, Ljubljana Bežigrad
🗺️ Regio: Ljubljana (stad)
🛏️ Slaapkamers: 3
🚿 Badkamers: 2
📏 Woonoppervlakte: 120 m²
🏗️ Bouwjaar: 2026
Energielabel: A1

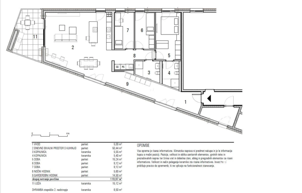
Dit prachtige 4-kamer appartement van 120 m² is gelegen in de gewilde wijk Bežigrad in Ljubljana. Het appartement maakt deel uit van het moderne Soči Park II project, dat hoogwaardige materialen en een eigentijdse architectuur biedt. De woning beschikt over een ruime woonkamer met open keuken en eetkamer van 50 m², drie slaapkamers, twee badkamers, een apart toilet, en een balkon van 15 m² dat ideaal is voor een buitenkeuken. Extra opslagruimte van 6,5 m² is beschikbaar naast het appartement. Het gebouw is voorzien van een lift, vloerverwarming, airconditioning, en een eigen parkeerplaats in de garage. De ligging biedt een uitstekende verbinding met het openbaar vervoer en nabijgelegen voorzieningen zoals winkels en restaurants. De regio Ljubljana staat bekend om zijn rijke culturele erfgoed en toeristische attracties zoals het kasteel van Ljubljana en Tivoli Park. De oplevering van het appartement is gepland voor de lente van 2026.

€635.000

Locatie

Kaart wordt geladen...