Modern en comfortabel 2-kamer appartement in Črnuče

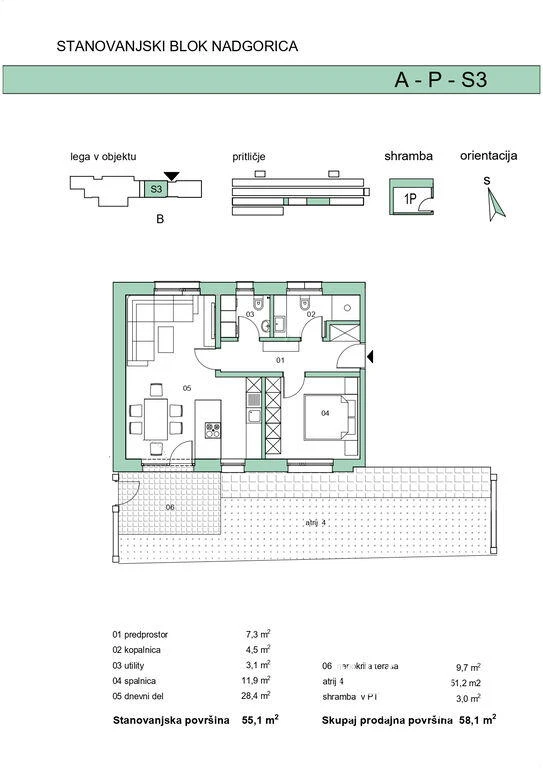
Dit prachtige 2-kamer appartement in Črnuče, Ljubljana, biedt een unieke kans om deel uit te maken van een moderne en duurzame woonomgeving. Gelegen in een nieuwbouwcomplex met 16 appartementen, variërend van compacte studio’s tot ruime 3-kamer eenheden, is dit appartement ideaal voor zowel individuen als gezinnen. Het appartement is ontworpen met hoogwaardige materialen en beschikt over uitstekende thermische isolatie, wat resulteert in een energiezuinige woning met energielabel A2. De moderne architectuur en functionele indeling maken het een aantrekkelijke keuze voor kopers. Het appartement beschikt over een ruime terras en een atrium, perfect voor buitenactiviteiten. Daarnaast is er een eigen parkeerplaats met voorbereiding voor een elektrische laadpaal. De omgeving biedt een rustige en vriendelijke sfeer met uitstekende verbindingen naar het stadscentrum, nabijheid van alle benodigde voorzieningen en de natuur. De locatie biedt snelle toegang tot de snelweg, LPP-bushaltes en het centrum van Ljubljana. Mis deze kans niet om deel uit te maken van deze moderne gemeenschap waar comfort en levenskwaliteit hand in hand gaan.


