Moderne enheid van een halfvrijstaande woning in Moste

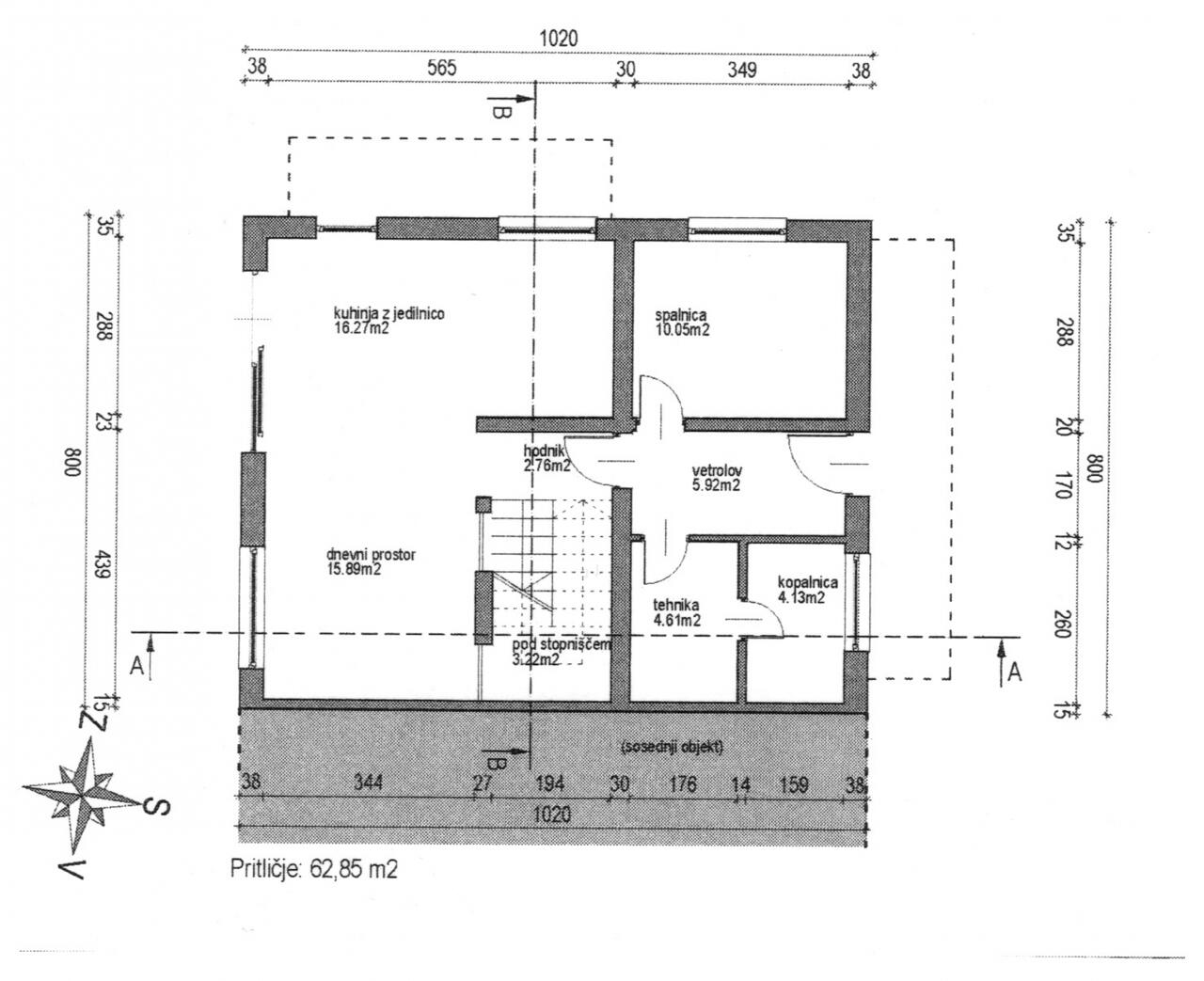
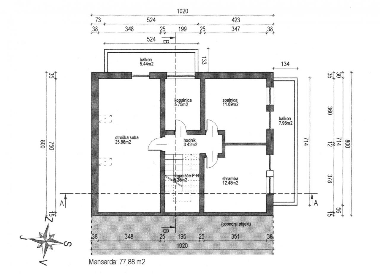
Deze prachtige halfvrijstaande woning in Moste biedt een moderne en functionele leefruimte, ideaal voor gezinnen of koppels die op zoek zijn naar comfort in een rustige omgeving. De woning, gebouwd in 2009, heeft een uitstekende indeling met ruime woonruimtes en is gedeeltelijk ingericht met moderne meubels. De begane grond beschikt over een keuken met eetkamer en toegang tot de binnenplaats, een studeerkamer, een badkamer en een technische ruimte. Op de eerste verdieping bevinden zich drie slaapkamers en een badkamer met toilet. De zolder biedt een grote multifunctionele ruimte. De woning is voorzien van vloerverwarming, radiatoren en drie airconditioners voor optimaal comfort. De buitenruimte omvat een verzorgde binnenplaats met een elektrisch zonnescherm, een gazon en een gereedschapsschuur. Er zijn twee parkeerplaatsen onder een carport voor de woning. De ligging in de regio Ljubljana-okolica biedt gemakkelijke toegang tot belangrijke voorzieningen zoals scholen, kinderdagverblijven, recreatiegebieden en openbaar vervoer. De nabijheid van de natuur en de rustige omgeving maken het een ideale plek voor gezinnen. De regio staat bekend om zijn prachtige landschappen en biedt tal van toeristische attracties, zoals wandel- en fietspaden, en culturele bezienswaardigheden in de nabijgelegen stad Kamnik.
















