Ruim en modern 3-slaapkamer appartement in Polje

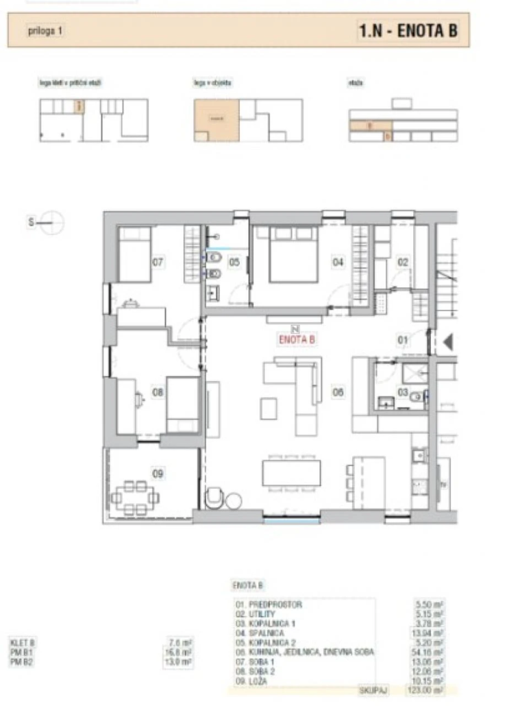
Ontdek dit ruime en moderne 3-slaapkamer appartement in een nieuwbouwproject in Polje, Ljubljana. Gelegen in een kleinschalig gebouw, biedt dit appartement een woonoppervlakte van 112,9 m², een loggia van 10,1 m² en een kelder van 7,7 m². De indeling is doordacht en biedt comfort en functionaliteit voor dagelijks gebruik. Met drie aparte slaapkamers is er voldoende privacy voor gezinnen of individuen die extra werkruimte nodig hebben. De lichte en open woonruimtes zorgen voor een aangename leefomgeving het hele jaar door. Het appartement beschikt over een kelder van 7,6 m² en een overdekte parkeerplaats van 16,8 m², evenals een onoverdekte parkeerplaats van 13 m². De locatie in Polje biedt snelle toegang tot belangrijke verkeersaders en alle benodigde infrastructuur zoals winkels, scholen en kinderdagverblijven. Dit appartement is een kans voor iedereen die op zoek is naar een moderne woning in een rustige en toegankelijke omgeving. Mis deze kans niet en neem contact met ons op voor meer informatie en een bezichtiging.



