Ruim en modern appartement in Nova Gorica

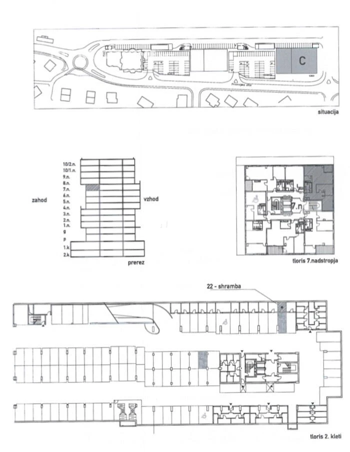
Dit prachtige 3-kamer appartement, gelegen in de Majske poljane van Nova Gorica, biedt een moderne en comfortabele leefruimte. Het appartement, gebouwd in 2011, bevindt zich op de 7e van 10 verdiepingen en beslaat een oppervlakte van 89,83 m². Het is momenteel omgebouwd tot een 4-kamer appartement, maar kan eenvoudig worden teruggebracht naar de oorspronkelijke indeling. De woning beschikt over een balkon, een berging, en twee eigen parkeerplaatsen in de ondergrondse garage, waarvan één verbonden is met een privékelder. Voorzieningen zoals een lift, airconditioning, inbraakwerende deuren, en optisch internet zijn aanwezig. De nabijheid van scholen, kinderdagverblijven, recreatiegebieden, en het stadscentrum maken het ideaal voor gezinnen en koppels. Nova Gorica, gelegen in de regio Severna Primorska, biedt een rijke culturele ervaring met nabijgelegen toeristische attracties zoals de Soča-vallei en de wijnregio Brda. De stad is goed verbonden met het openbaar vervoer en biedt een scala aan winkels en restaurants.


