Ruime en Moderne Vrijstaande Woning in Mengeš

€593.000
📍 Locatie: Mengeš, Domžale
🗺️ Regio: Ljubljana (omgeving)
🛏️ Slaapkamers: 10
🚿 Badkamers: 3
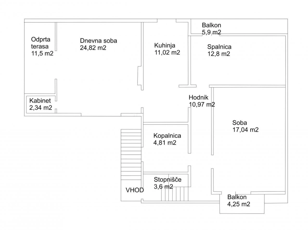
📏 Woonoppervlakte: 351 m²
🏗️ Bouwjaar: 1967
Energielabel: D

Deze prachtige vrijstaande woning in Mengeš biedt een royale woonruimte van 351,9 m² en is gelegen op een perceel van 422 m². De woning, oorspronkelijk gebouwd in 1967 en volledig gerenoveerd in 2023, beschikt over drie afzonderlijke appartementen, ideaal voor grote gezinnen of investeerders die op zoek zijn naar verhuurmogelijkheden. De woning heeft een zonnige ligging en is voorzien van moderne voorzieningen zoals een nieuwe centrale verwarming met warmtepomp, optische verbindingen en een nieuwe gevel. De kelderverdieping herbergt een ruim 4-kamer appartement, terwijl het verhoogde gelijkvloers en de zolderverdieping respectievelijk een 3-kamer en een 3,5-kamer appartement bieden. Elk appartement is uitgerust met moderne keukens en badkamers, en de zolderverdieping biedt toegang tot een open terras met een prachtig uitzicht. De woning is gunstig gelegen nabij het centrum van Mengeš, met gemakkelijke toegang tot winkels, restaurants en openbaar vervoer. De regio Ljubljana-okolica staat bekend om zijn prachtige natuur en biedt tal van recreatieve mogelijkheden, zoals wandelen en fietsen in de nabijgelegen heuvels. Mis deze unieke kans niet om eigenaar te worden van een veelzijdige woning in een van de meest gewilde regio’s van Slovenië.

€593.000

Locatie

Kaart wordt geladen...