Unieke Vrijstaande Woning in Nova Vas

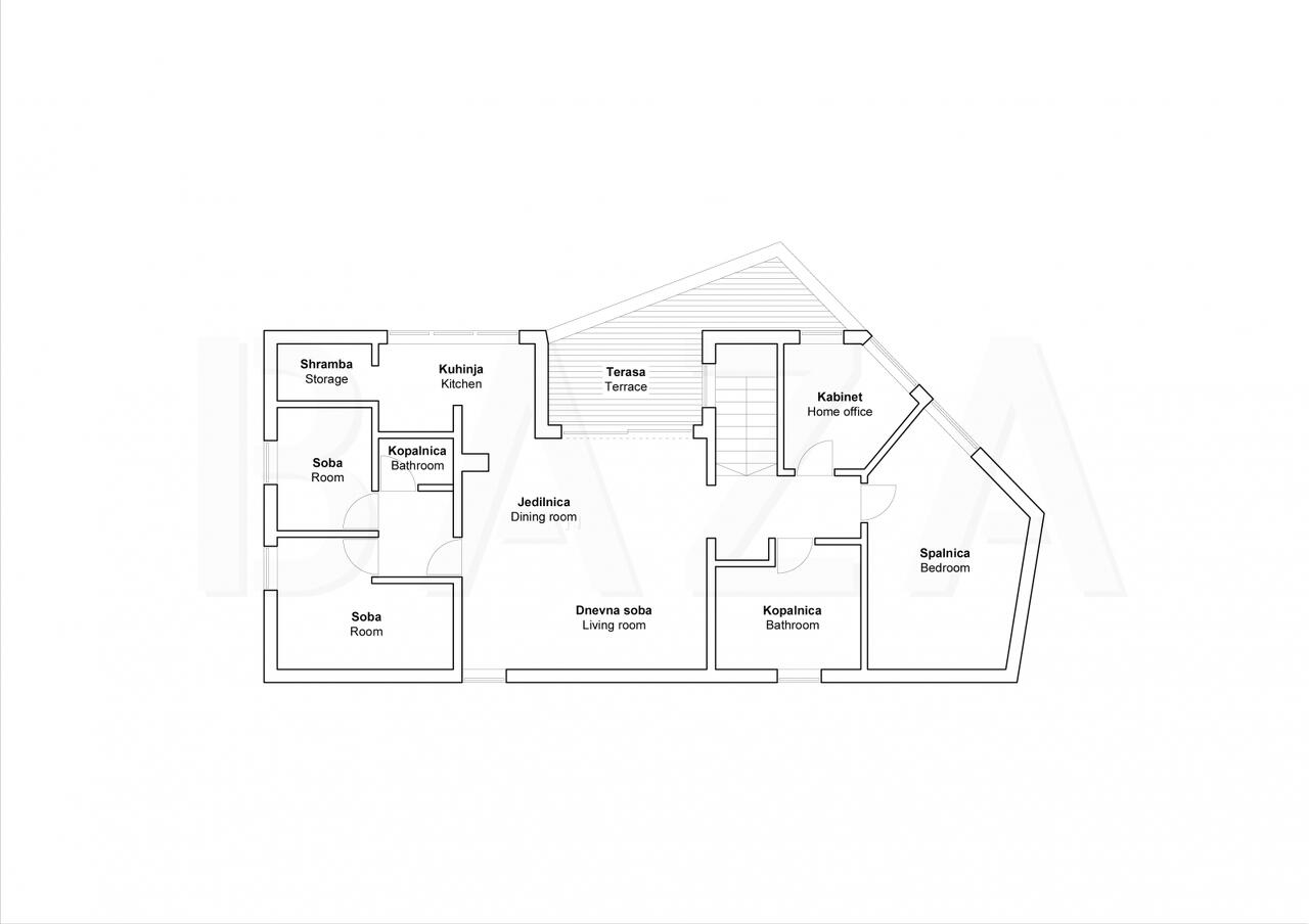
Op een steeds gewildere locatie in Nova Vas, gemeente Bloke, staat deze unieke vrijstaande woning te koop. De woning, gebouwd in 1979, biedt een royale woonoppervlakte van 275,6 m² en staat op een perceel van 626 m². De woning is omgeven door groen en biedt een rustige leefomgeving, ideaal voor gezinnen die op zoek zijn naar ruimte en privacy. De grote tuin biedt mogelijkheden voor een boomgaard, speelruimte voor kinderen of een ontspanningshoek. De woning beschikt over een ruime terras, perfect voor familiebijeenkomsten of ontspanning. De centrale verwarming werkt op stookolie en het sanitair water wordt verwarmd met een warmtepomp. Naast de garage is er voldoende parkeergelegenheid voor meerdere auto’s. De regio Notranjska staat bekend om zijn prachtige natuur en biedt tal van recreatiemogelijkheden. In de nabijheid vindt u alle nodige voorzieningen voor een comfortabel leven. De woning is een uitstekende keuze voor diegenen die een huis met een artistiek en uniek karakter waarderen.


