Bouwgrond in Grajenščak met bouwvergunning

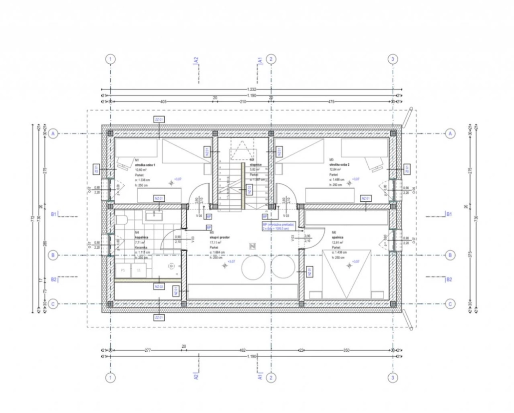
Ontdek deze prachtige bouwgrond in Grajenščak, gelegen in de regio Podravska. Met een totale oppervlakte van 1.052 m², waarvan 48,9% bestemd is voor bebouwing, biedt dit perceel een uitstekende kans om uw droomhuis te bouwen in een rustige en natuurlijke omgeving. De bouwvergunning voor een moderne vrijstaande woning is al verkregen, wat een snelle start van de bouw mogelijk maakt zonder langdurige procedures. Het perceel is gemakkelijk bereikbaar via een eigen oprit direct vanaf de hoofdweg en is voorzien van alle noodzakelijke nutsvoorzieningen zoals elektriciteit en water. Geniet van de serene en zonnige locatie met een prachtig uitzicht op de omliggende natuur en bossen. De locatie biedt uitstekende verbindingen, op slechts 7 km van Ptuj en 20 km van Maribor. Ideaal voor wie op zoek is naar een kwaliteitsvolle woonomgeving in de natuur, met de nabijheid van de stad en goede infrastructuur.
Locatie
Deel dit perceel
Tags
Pages
Bedrijfsgegevens
T: +31 (0)6-41416144
E: info@slovenievastgoed.nl



