Charmant 3-kamer appartement in Koper

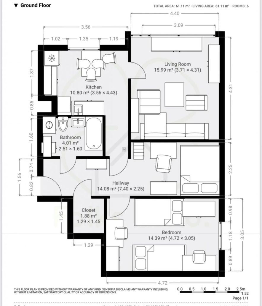
Dit prachtige 3-kamer appartement op de begane grond in Prisojah bij Koper biedt een unieke kans voor gezinnen, stellen, senioren of investeerders. Het appartement is volledig gerenoveerd in 2022 en beschikt over een moderne keuken met alle apparatuur, nieuwe radiatoren, ramen, luiken en vloeren. Het biedt een ruime indeling met een grote woonkamer, een grotere en een kleinere slaapkamer, een badkamer, een keuken, een hal, een berging en een kelder. Het appartement is volledig uitgerust met airconditioning en centrale verwarming, en heeft inbraakwerende deuren en optische en kabelinternetverbindingen. De locatie is ideaal, met winkels, apotheken, restaurants, een bushalte en wandelpaden in de directe omgeving. Koper, gelegen in de regio Južna Primorska, staat bekend om zijn prachtige kustlijn en historische bezienswaardigheden. Het biedt een perfecte mix van stadsleven en rustige woonomgeving. De koper dient rekening te houden met een overdrachtsbelasting van 2%.
Locatie
Deel dit object
Tags
Pages
Bedrijfsgegevens
T: +31 (0)6-41416144
E: info@slovenievastgoed.nl



