Charmant 3-kamer appartement in Sp. Šiška

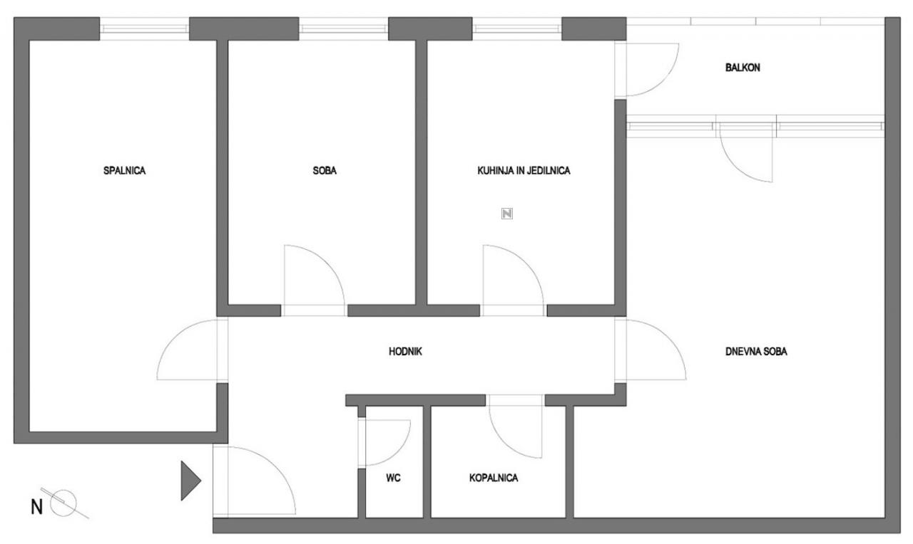
Dit prachtige 3-kamer appartement in Sp. Šiška biedt een unieke kans voor wie op zoek is naar een comfortabel en goed gelegen woning. Gelegen in een goed onderhouden gebouw aan de Celovška cesta, biedt dit appartement een functionele indeling met een hal, keuken met eetkamer, woonkamer, slaapkamer, extra kamer, badkamer met bad en een glazen balkon. Het appartement is in 2020 gedeeltelijk gerenoveerd en opnieuw geschilderd, met een goed onderhouden gevel en dak. Verwarming is centraal geregeld via radiatoren en warm water wordt geleverd door een eigen gasboiler. Parkeren is mogelijk voor het gebouw of in de directe omgeving. De locatie is ideaal met alle benodigde infrastructuur binnen handbereik, zoals winkels, scholen, kinderdagverblijven en openbaar vervoer. Bovendien biedt de nabijheid van de snelweg een snelle toegang tot andere delen van de stad. De regio Ljubljana biedt tal van toeristische attracties, waaronder het prachtige Tivoli Park en het historische centrum van Ljubljana. Dit appartement is snel beschikbaar en biedt een geweldige kans voor zowel gezinnen als investeerders.


