Charmant rijtjeshuis in het hart van Šempeter v Savinjski Dolini

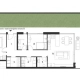
Dit charmante rijtjeshuis in Šempeter v Savinjski Dolini biedt een unieke kans voor gezinnen die op zoek zijn naar een comfortabele woning met alle voorzieningen binnen handbereik. Gelegen in het centrum van de stad, biedt deze woning een uitstekende bereikbaarheid en nabijheid tot scholen, winkels en openbaar vervoer. De woning, gebouwd in 1976 en gedeeltelijk gerenoveerd in 2015, beschikt over een ruime woonoppervlakte van 167 m² verdeeld over drie verdiepingen. De begane grond omvat een hal, een garage, een kamer, een wasruimte en een stookruimte. De eerste verdieping is volledig gerenoveerd en biedt een slaapkamer, een badkamer, een keuken met eetkamer, een woonkamer en een extra kamer. De zolder heeft een afgewerkte kamer en een onafgewerkt deel. Het huis is voorzien van centrale verwarming op aardgas en airconditioning. De zonnige en vlakke kavel van 441 m² biedt voldoende ruimte voor recreatie en parkeren. De regio Savinjska staat bekend om zijn prachtige natuur en biedt tal van recreatiemogelijkheden. De nabijheid van de snelweg en het openbaar vervoer maakt het een ideale locatie voor forenzen. Mis deze kans niet om een woning te bezitten in een van de meest gewilde gebieden van Savinjska.
Locatie
Deel dit object
Tags
Pages
Bedrijfsgegevens
T: +31 (0)6-41416144
E: info@slovenievastgoed.nl



