Charmant rijtjeshuis in Slovenska Bistrica

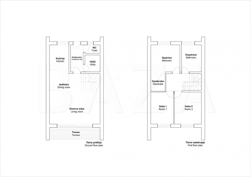
Ontdek dit prachtige rijtjeshuis in Slovenska Bistrica, gelegen in de regio Podravska. Dit huis, gebouwd in 2004 en gerenoveerd in 2012, biedt een perfecte balans tussen privacy en toegankelijkheid tot alle benodigde voorzieningen. Het huis bevindt zich in een rustige buurt met zeven huizen en een gemeenschappelijk hof met kinderspeeltoestellen. De woning heeft een netto vloeroppervlakte van 100 m² en een perceelgrootte van 159 m². Het huis beschikt over drie slaapkamers, een badkamer met een bubbelbad, en een ruime woonkamer met een open keuken en eetkamer. De zuidelijk gelegen tuin met overdekt terras biedt een heerlijke plek om te ontspannen. Voorzien van moderne gemakken zoals vloerverwarming, airconditioning en een gasverwarmingssysteem, is dit huis volledig uitgerust met hoogwaardige meubels. De nabijheid van recreatiegebieden, openbaar vervoer en snelwegopritten maakt het een ideale keuze voor gezinnen die op zoek zijn naar een comfortabele en rustige woonomgeving.
Locatie
Deel dit object
Tags
Pages
Bedrijfsgegevens
T: +31 (0)6-41416144
E: info@slovenievastgoed.nl



