Charmante Vrijstaande Woning in Zgornja Kungota

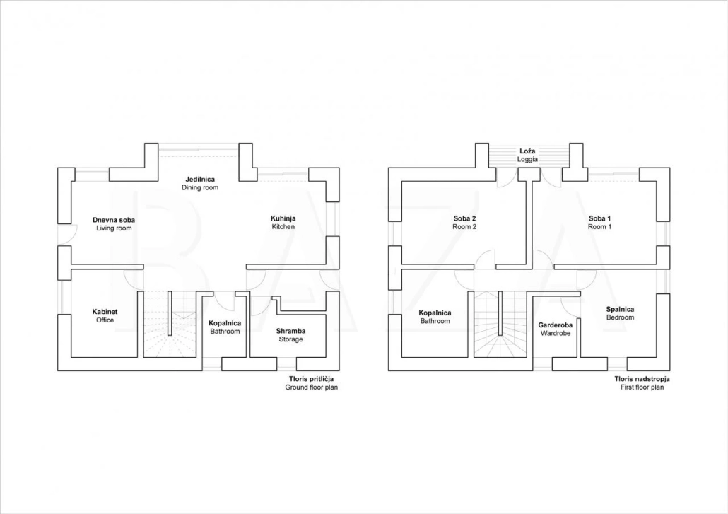
Ontdek deze prachtige vrijstaande woning in Zgornja Kungota, gelegen in de snelgroeiende en populaire gemeente Podravska. Deze woning, gebouwd in 2020, bevindt zich in de derde bouwfase en biedt een netto oppervlakte van 146,58 m². Het perceel van 2.860 m² biedt voldoende ruimte voor buitenactiviteiten en verdere ontwikkeling. De woning is ideaal voor gezinnen en biedt een rustige omgeving met snelle toegang tot zowel Oostenrijk als Maribor. In de buurt vindt u diverse voorzieningen zoals een postkantoor, apotheek, kleuterschool, school, dokter en bakkerij. De woning is gebouwd met Ytong-blokken van 40 cm dik en is voorzien van vloerverwarming met lucht/water-warmtepomp. De regio Podravska staat bekend om zijn prachtige landschappen en biedt tal van toeristische attracties, waaronder wijnroutes en wandelpaden. De woning is goed bereikbaar met het openbaar vervoer en ligt in een vriendelijke buurt met diverse winkels en restaurants in de nabijheid.
Locatie
Deel dit object
Tags
Pages
Bedrijfsgegevens
T: +31 (0)6-41416144
E: info@slovenievastgoed.nl



