Elegant en ruim appartement in het hart van Ljubljana

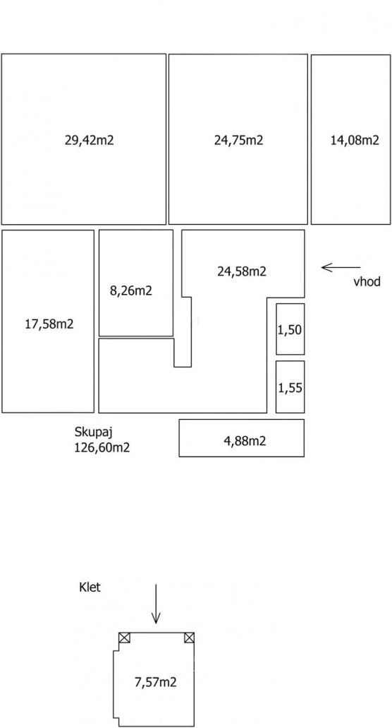
Dit prachtige, elegante appartement in het centrum van Ljubljana biedt een unieke kans om te wonen in een van de mooiste gebouwen van de stad. Met een oppervlakte van 134,02 m², hoge plafonds van 3,45 meter en een overvloed aan natuurlijk licht, straalt dit appartement een klassieke charme uit. Het appartement is volledig gerenoveerd met hoogwaardige materialen, waaronder nieuwe elektrische en waterinstallaties, en beschikt over op maat gemaakte dubbele deuren in een klassieke stijl. De ligging is ideaal, met uitzicht op een deel van het kasteel van Ljubljana en nabijheid van diverse voorzieningen zoals scholen, winkels, restaurants en recreatiegebieden. Het appartement biedt een flexibele indeling die zowel privacy als ruime gemeenschappelijke ruimtes mogelijk maakt. De zuidelijk gelegen balkon biedt de hele dag zonlicht. Het gebouw is volledig gerenoveerd en beschermd als cultureel erfgoed, en biedt een levendige culturele en creatieve sfeer. Met een eigen gasverwarming en lage onderhoudskosten is dit appartement een uitstekende keuze voor wie op zoek is naar een stijlvolle en comfortabele woonruimte in het hart van de stad.
Locatie
Deel dit object
Tags
Pages
Bedrijfsgegevens
T: +31 (0)6-41416144
E: info@slovenievastgoed.nl



