Exclusief bouwgrond in Ljubljana Moste

€375.000
📍 Locatie: Ljubljana Moste, Novo Polje
🗺️ Regio: Ljubljana (stad)
📏 Grondoppervlakte: 411 m²

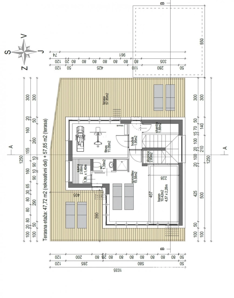
Ontdek een unieke kans om een luxe eengezinswoning te bouwen op een zonnig perceel in het rustige en goed onderhouden gebied van Novo Polje, Ljubljana Moste. Dit bouwrijpe perceel van 411 m² wordt geleverd met een rechtsgeldig bouwvergunning en alle benodigde aansluitingen, wat een aanzienlijke besparing in tijd en kosten betekent. De locatie biedt een uitstekende verbinding met het centrum van Ljubljana en de snelweg, op slechts 3 minuten afstand. Geniet van de nabijheid van het Krajinski park Zajčja dobrava en alle essentiële voorzieningen zoals scholen, winkels en openbaar vervoer. De regio Ljubljana staat bekend om zijn rijke culturele erfgoed en bruisende stadsleven, waardoor het een ideale plek is voor zowel wonen als investeren.

€375.000

Locatie

Kaart wordt geladen...