Exclusieve bouwkavel in het serene Godič

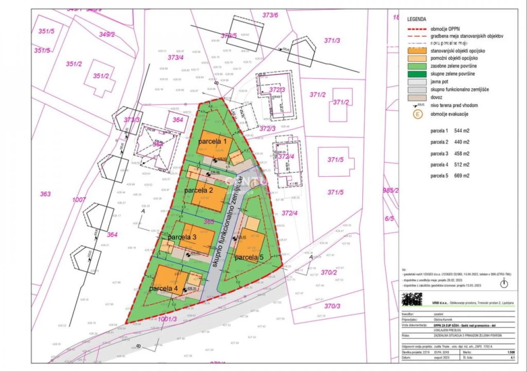
Ontdek een unieke kans om een volledig uitgeruste bouwkavel te verwerven in het pittoreske Kamnik, specifiek in de vredige omgeving van Godič. Deze bouwkavel biedt de mogelijkheid om een eengezins- of rijtjeshuis te bouwen in een nieuw opkomende wijk met vijf huizen, wat zorgt voor een georganiseerde leefomgeving. Geniet van een adembenemend uitzicht op de omliggende bergen en de ongerepte natuur, terwijl u toch snel toegang heeft tot de stad Kamnik en alle benodigde infrastructuur. De locatie biedt een rustige en natuurlijke omgeving, ideaal voor een kwalitatief hoogstaand leven. De regio Ljubljana-okolica staat bekend om zijn prachtige landschappen en biedt tal van toeristische attracties zoals het kasteel van Kamnik en de nabijgelegen bergen voor wandel- en skirecreatie. In de buurt vindt u diverse winkels, restaurants en uitstekende vervoersmogelijkheden. De bouwkavel is voorzien van een nieuwe waterleiding, riolering en aansluitingen op het elektriciteits- en telecommunicatienetwerk. De geplande infrastructuur zal in mei 2025 voltooid zijn, wat een aanzienlijke besparing betekent voor de koper.
Locatie
Deel dit perceel
Tags
Pages
Bedrijfsgegevens
T: +31 (0)6-41416144
E: info@slovenievastgoed.nl



