Luxe 3-slaapkamer appartement in Stanežiče

€695.000
📍 Locatie: Stanežiče, Ljubljana Šiška
🗺️ Regio: Ljubljana (stad)
🛏️ Slaapkamers: 3
📏 Woonoppervlakte: 252 m²
🏗️ Bouwjaar: 2023
Energielabel: B1

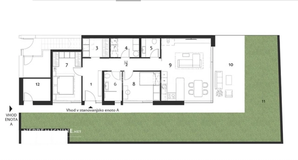
Ontdek het moderne en aantrekkelijke appartement in Vila Stanežiče, gelegen in een rustig en goed onderhouden wijk aan de rand van Ljubljana. Dit drie-slaapkamer appartement op de begane grond biedt een royale woonoppervlakte van 91,8 m², inclusief een ruime opslagruimte van 15,7 m². Het appartement beschikt over een eigen ingang, een fietsenstalling en twee eigen parkeerplaatsen, waarvan één voorbereid is voor een elektrische laadpaal. Geniet van de prachtige uitzichten op de Šmarna Gora en de omliggende heuvels vanaf de ruime terrassen. De woning is uitgerust met hoogwaardige voorzieningen zoals vloerverwarming, een warmtepomp met geosonde, een ventilatiesysteem met luchtterugwinning en een biologische zuiveringsinstallatie. De nabijheid van essentiële infrastructuur zoals een bushalte, snelweg, scholen, winkels en het winkelcentrum Aleja maakt het een ideale locatie. Bovendien biedt de omgeving tal van recreatiemogelijkheden zoals wandelen, fietsen en bergbeklimmen. Mis deze kans niet om te wonen in een luxe appartement dat comfort en privacy biedt in een prachtige natuurlijke omgeving.

€695.000

Locatie

Kaart wordt geladen...