Luxe Rijtjeshuis in Celje met Moderne Architectuur

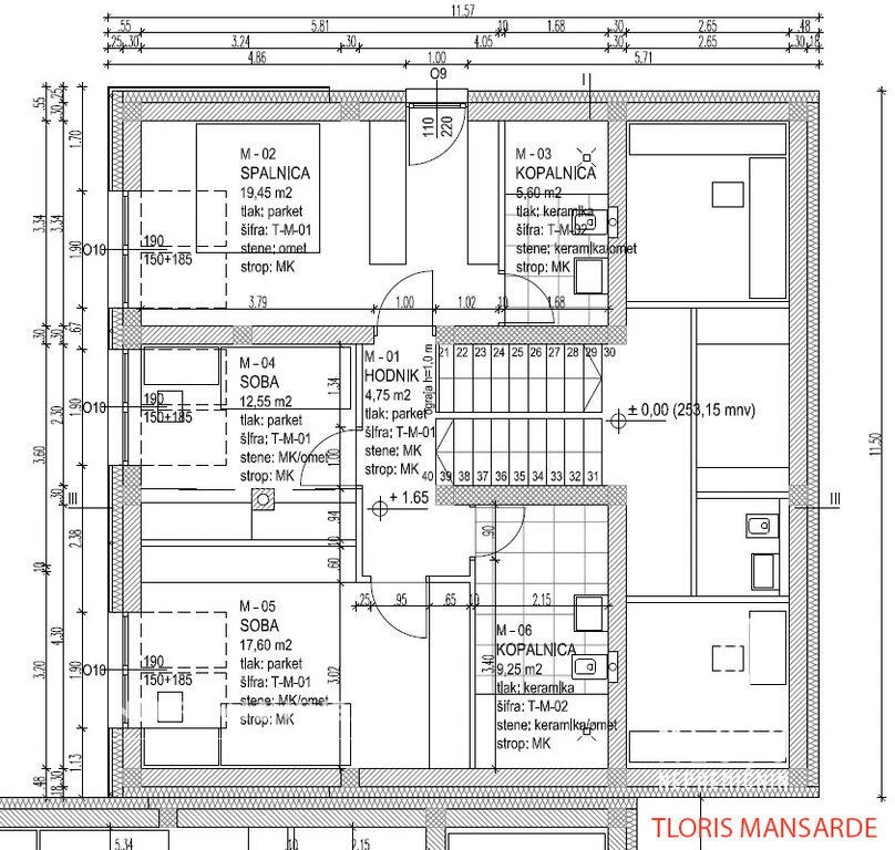
Ontdek dit luxe rijtjeshuis in een van de meest gewilde en rustige locaties in Celje. Deze moderne woning, gepland voor voltooiing in juni 2026, biedt een perfecte combinatie van comfort en functionaliteit. Met een eigentijdse architectuur en hoogwaardige materialen, is deze woning ontworpen voor energie-efficiëntie en lage operationele kosten. De woning beschikt over een slimme indeling die privacy en zelfstandigheid biedt, ondanks dat het aan één kant grenst aan een andere eenheid. Geniet van de overvloedige natuurlijke lichtinval dankzij de westelijke oriëntatie. De bovenste verdieping herbergt drie ruime slaapkamers en twee moderne badkamers, terwijl de onderste verdiepingen zijn gewijd aan woon- en ontspanningsruimtes. De woning is ideaal voor gezinnen of koppels die op zoek zijn naar een moderne, energiezuinige woning op een uitstekende locatie. Nabijgelegen voorzieningen omvatten scholen, kinderdagverblijven, winkels en gezondheidszorg, evenals snelle toegang tot de snelweg en het stadscentrum. Voor natuurliefhebbers biedt de locatie tal van recreatiemogelijkheden, zoals wandel- en fietspaden naar het nabijgelegen Šmartinsko meer.
Locatie
Deel dit object
Tags
Pages
Bedrijfsgegevens
T: +31 (0)6-41416144
E: info@slovenievastgoed.nl



