Luxe rijtjeshuis op gewilde locatie in Celje

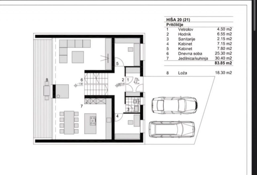
Ontdek deze unieke kans voor gezinnen: een nieuwe luxe rijtjeshuis op een toplocatie in Celje. Met een netto vloeroppervlak van 221,45 m² biedt deze woning alles wat een gezin nodig heeft: ruimte, comfort en een ideale verbinding met de omgeving. De woning is ontworpen met een moderne en doordachte indeling, waardoor elk gezinslid zijn eigen plek kan vinden. De kelder biedt een technische ruimte, een zomerkeuken en een recreatieruimte die kan worden omgebouwd tot een extra slaapkamer. Het souterrain heeft ook een sauna en een terras met gazon. Op de begane grond vindt u een ruime keuken met eetkamer en een aangrenzende woonkamer met toegang tot een groot balkon. De zolder heeft drie ruime slaapkamers en twee badkamers. De woning biedt parkeergelegenheid voor twee voertuigen en is georiënteerd op de zonnige kant, wat zorgt voor veel natuurlijk licht. De locatie is uitzonderlijk, met nabijgelegen scholen, winkels en andere voorzieningen. De directe nabijheid van de snelweg en het openbaar vervoer maakt het een ideale keuze voor moderne gezinnen. Mis deze kans niet om uw droomhuis te reserveren op deze gewilde locatie.
Locatie
Deel dit object
Tags
Pages
Bedrijfsgegevens
T: +31 (0)6-41416144
E: info@slovenievastgoed.nl



