Modern en licht appartement in Ljubljana Bežigrad

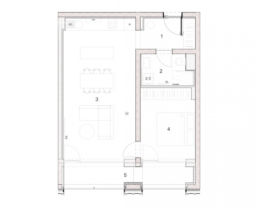
Ontdek het moderne en lichte appartement in de nieuwe woonwijk Novi Bežigrad, gelegen tussen Tolstojeva ulica en Mašera – Spašićeve. Dit 2-kamer appartement van 65,66 m² biedt een prachtig uitzicht op de majestueuze Julische Alpen dankzij de grote glazen oppervlakken. De wijk is ontworpen met een groene visie, met veel groen geïntegreerd in de omgeving, wat zorgt voor frisse lucht en een aangename temperatuur. Het gebouw, dat in 2025 wordt opgeleverd, is gemaakt van hoogwaardige en duurzame materialen. De locatie biedt gemakkelijke toegang tot lokale voorzieningen zoals winkels en restaurants, en is goed verbonden met het openbaar vervoer. Ljubljana Bežigrad is een levendige buurt met een rijke geschiedenis en biedt een scala aan culturele en recreatieve activiteiten. Mis deze kans niet om te investeren in een woning in een van de meest gewilde gebieden van Ljubljana.
Locatie
Deel dit object
Tags
Pages
Bedrijfsgegevens
T: +31 (0)6-41416144
E: info@slovenievastgoed.nl



