Modern en licht appartement in Ljubljana Bežigrad

€410.506
📍 Locatie: Ljubljana Bežigrad, Ljubljana
🗺️ Regio: Ljubljana (stad)
🛏️ Slaapkamer: 1
🚿 Badkamer: 1
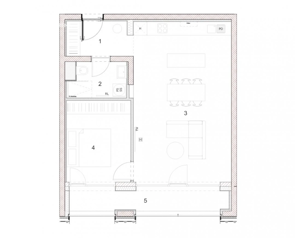
📏 Woonoppervlakte: 71 m²
🏗️ Bouwjaar: 2025

Ontdek het moderne en lichte 2-kamer appartement in de nieuwe woonwijk Novi Bežigrad, gelegen tussen Tolstojeva ulica en Mašera – Spašićeve ulica. Dit appartement biedt een prachtig uitzicht op de majestueuze Julische Alpen en is ontworpen met grote glazen oppervlakken die zorgen voor veel natuurlijk licht. De wijk is groen en open, met terrassen die ruimte bieden voor groenvoorzieningen, zelfs op hogere verdiepingen. Het gebouw wordt gebouwd met hoogwaardige en duurzame materialen die bestand zijn tegen toekomstige milieu-invloeden. De omgeving biedt een frisse lucht en aangename temperaturen dankzij de integratie van groen. Bežigrad is een levendige wijk met gemakkelijke toegang tot winkels, restaurants en openbaar vervoer. De regio Ljubljana staat bekend om zijn rijke geschiedenis en culturele bezienswaardigheden, zoals het kasteel van Ljubljana en de pittoreske oude binnenstad. Dit appartement is ideaal voor wie op zoek is naar een moderne en comfortabele leefruimte in een dynamische omgeving.

€410.506

Locatie

Kaart wordt geladen...