Modern en licht appartement in Ljubljana Bežigrad

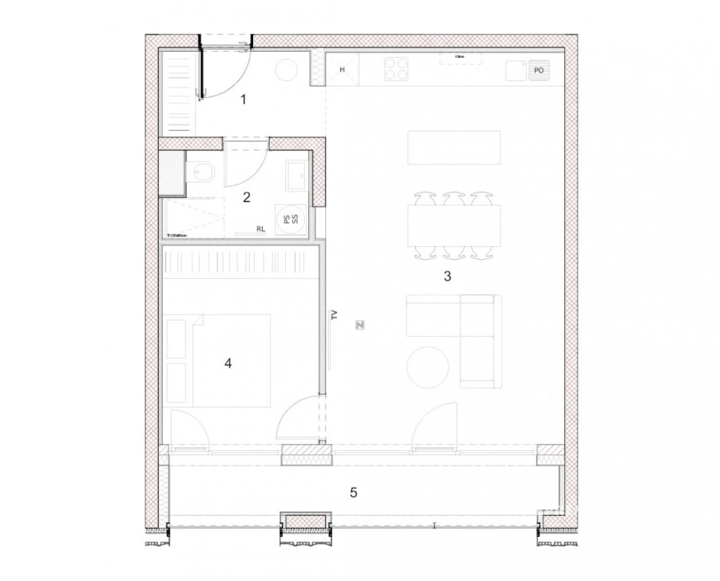
Dit moderne en lichte 2-kamer appartement bevindt zich in de gewilde wijk Novi Bežigrad in Ljubljana. Gelegen op de eerste verdieping van een negen verdiepingen tellend gebouw dat in 2028 zal worden voltooid, biedt dit appartement een doordachte indeling en comfortabele leefruimte van ongeveer 57 m². Het appartement beschikt over een ruime woonkamer met keuken en eetgedeelte, een slaapkamer met inloopkast, een badkamer, een utility ruimte en een loggia die veel natuurlijk licht binnenlaat. De grote glazen oppervlakken op het zuiden zorgen voor een overvloed aan zonlicht en een aangename leefomgeving. De wijk Bežigrad staat bekend om zijn uitstekende infrastructuur, nabijheid van onderwijsinstellingen, winkels en goede vervoersverbindingen. Dit maakt het een ideale locatie voor comfortabel stedelijk wonen. Mis deze kans niet om een modern en ruim appartement te bezitten op een aantrekkelijke locatie in Bežigrad!
Locatie
Deel dit object
Tags
Pages
Bedrijfsgegevens
T: +31 (0)6-41416144
E: info@slovenievastgoed.nl



