Modern en licht appartement in Ljubljana Bežigrad

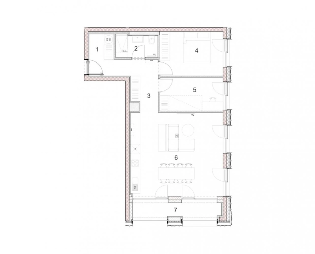
Ontdek het moderne en lichte 3-kamer appartement in de nieuwe woonwijk Novi Bežigrad, gelegen tussen Tolstojeva ulica en Mašera – Spašićeve ulica. Dit appartement biedt een prachtig uitzicht op de majestueuze Julische Alpen en is ontworpen met grote glazen oppervlakken die zorgen voor veel natuurlijk licht. De wijk is groen en open, met terrassen die ruimte bieden voor groenvoorzieningen, zelfs op hogere verdiepingen. Het gebouw wordt gebouwd met hoogwaardige en duurzame materialen die bestand zijn tegen toekomstige milieu-invloeden. De omgeving biedt een frisse lucht en aangename temperaturen dankzij de integratie van groen. De locatie in Ljubljana Bežigrad biedt gemakkelijke toegang tot lokale voorzieningen zoals winkels en restaurants, en is goed verbonden met het openbaar vervoer. De regio Ljubljana staat bekend om zijn rijke culturele erfgoed en toeristische attracties, zoals het kasteel van Ljubljana en het Tivoli Park.
Locatie
Deel dit object
Tags
Pages
Bedrijfsgegevens
T: +31 (0)6-41416144
E: info@slovenievastgoed.nl



