Modern en ruim 3-kamer appartement in Ljubljana Bežigrad

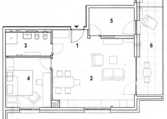
Dit prachtige, nieuw gebouwde 3-kamer appartement in Ljubljana Bežigrad biedt een moderne en comfortabele leefomgeving. Met een netto vloeroppervlak van 78,1 m² en een ruim balkon, is dit appartement ideaal voor diegenen die op zoek zijn naar een hogere levenskwaliteit. Het appartement is ontworpen zonder drempels, met ruime badkamers zonder badkuipen, alleen douches, en alle verdiepingen zijn verbonden met een lift. Het is geschikt voor mensen met mobiliteitsbeperkingen en ligt in de directe nabijheid van het Universitair Revalidatie Instituut (URI) Soča. De omgeving biedt tal van voorzieningen zoals winkels, restaurants en uitstekende vervoersmogelijkheden. Ljubljana Bežigrad is een levendige wijk met een rijke culturele scene en gemakkelijke toegang tot het stadscentrum. De regio Ljubljana staat bekend om zijn historische bezienswaardigheden, groene parken en bruisende stadsleven. Dit appartement is perfect voor diegenen die willen genieten van het beste dat Ljubljana te bieden heeft.
Locatie
Deel dit object
Tags
Pages
Bedrijfsgegevens
T: +31 (0)6-41416144
E: info@slovenievastgoed.nl


