Moderne 3-slaapkamer appartement in het hart van Apače

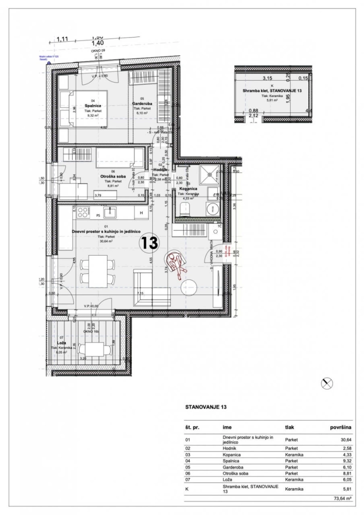
Dit moderne 3-slaapkamer appartement, gelegen in het centrum van Apače, biedt een perfecte combinatie van comfort en kwaliteit. Met een netto woonoppervlakte van 75,7 m², inclusief een handige berging van 5,81 m², is dit appartement ideaal voor gezinnen of als investering. Het appartement bevindt zich op de tweede verdieping van een U-vormig gebouw met een lift en biedt een functionele indeling met veel natuurlijk licht. De woning beschikt over een balkon, een aparte verwarmings- en koelsysteem met een warmtepomp, en een centrale ventilatie-eenheid met uitstekende technische eigenschappen. De hoogwaardige afwerking omvat driedubbele beglazing, elektrische aluminium jaloezieën, en vloeren van eiken parket en keramiek. De badkamer is uitgerust met topmerken zoals Villery Boch en Geberit. Gelegen in de regio Pomurska, biedt Apače een scala aan voorzieningen zoals een park, sportfaciliteiten, een kleuterschool, winkels, een apotheek, een school en een postkantoor. De nabijheid van de Oostenrijkse grens maakt het een aantrekkelijke locatie voor zowel lokale als internationale kopers. Het appartement is geschikt voor comfortabel gezinsleven en biedt een stabiele en betrouwbare investering.
Locatie
Deel dit object
Tags
Pages
Bedrijfsgegevens
T: +31 (0)6-41416144
E: info@slovenievastgoed.nl



