Moderne Driekamerappartement in Nadgorica

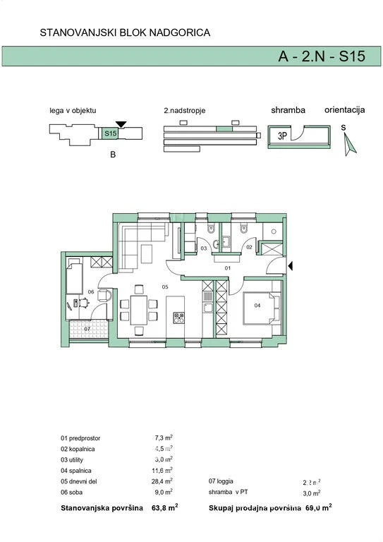
Dit prachtige driekamerappartement in Nadgorica biedt een unieke kans om deel uit te maken van een moderne en comfortabele woonomgeving. Gelegen in een nieuwbouwcomplex met 16 appartementen, variërend van compacte studio’s tot ruime driekamerwoningen, biedt deze woning een uitstekende combinatie van stijl en functionaliteit. Het appartement is ontworpen met hoogwaardige materialen en beschikt over een uitstekende thermische isolatie, waardoor het energieverbruik minimaal is (energieklasse A2). De moderne architectuur en de functionele indeling maken het appartement ideaal voor zowel individuen als gezinnen. De omgeving biedt een kindvriendelijke buurt met een speeltuin en andere recreatieve voorzieningen. Het appartement beschikt over een kelderberging en een parkeerplaats met voorbereiding voor een elektrische laadpaal. Geniet van het overdekte balkon dat een prachtig uitzicht biedt. De ligging in Nadgorica zorgt voor een rustige en vriendelijke omgeving met uitstekende verbindingen naar het stadscentrum, nabijheid van alle benodigde voorzieningen en de natuur. De locatie biedt snelle toegang tot de snelweg, het openbaar vervoer en het centrum van Ljubljana. Mis deze kans niet om te wonen in een moderne wijk waar comfort en kwaliteit van leven hand in hand gaan.
Locatie
Deel dit object
Tags
Pages
Bedrijfsgegevens
T: +31 (0)6-41416144
E: info@slovenievastgoed.nl



