Moderne en energiezuinige vrijstaande woning in Ješenca

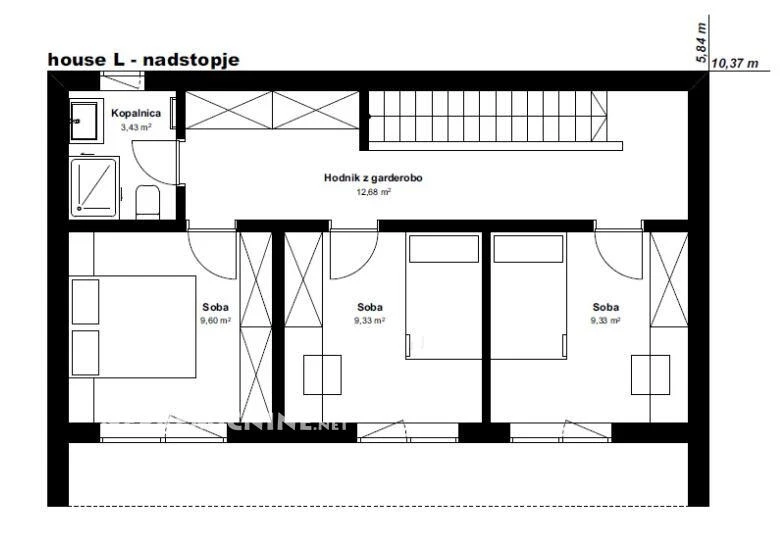
Ontdek deze moderne en energiezuinige vrijstaande woning in Ješenca, een ideale keuze voor gezinnen en werkenden in Maribor. Deze nieuwbouw, voltooid in 2025, biedt een functionele indeling met de mogelijkheid om naar eigen wens in te richten. De woning ligt op een rustige locatie, dicht bij de natuur en op slechts 15 minuten van Maribor. Geniet van de nabijheid van recreatiegebieden, scholen en kinderdagverblijven. De woning beschikt over vloerverwarming, een warmtepomp en voorbereidingen voor airconditioning en fotovoltaïsche installaties. De omgeving biedt tal van recreatiemogelijkheden, zoals een meer met wandelpaden en een dorpshuis met volleybalvelden. Het centrum van Rače ligt op slechts 5 minuten afstand, met alle benodigde voorzieningen zoals winkels en restaurants. Mis deze kans niet en neem contact op voor een bezichtiging!
Locatie
Deel dit object
Tags
Pages
Bedrijfsgegevens
T: +31 (0)6-41416144
E: info@slovenievastgoed.nl



