Moderne engezinswoning in de natuur van Sv. Trojica

€217.357
📍 Locatie: Sv. Trojica v Slovenskih Goricah, Lenart
🗺️ Regio: Podravska
🛏️ Slaapkamers: 3
🚿 Badkamer: 1
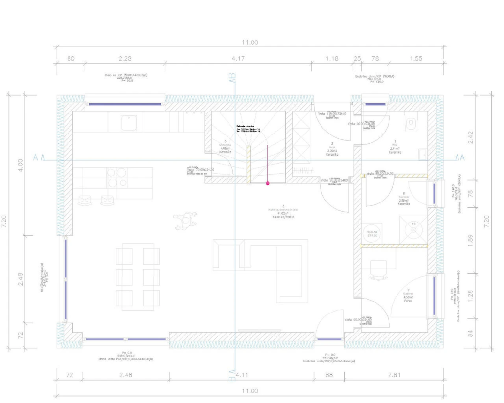
📏 Woonoppervlakte: 116 m²
🏗️ Bouwjaar: 2025
Energielabel: A1

Ontdek deze prachtige moderne en minimalistische eengezinswoning in het rustige en zonnige Sv. Trojica v Slovenskih Goricah. Deze woning, gebouwd in 2025, biedt een perfecte combinatie van functionaliteit, esthetiek en een nauwe band met de natuur. Met een woonoppervlakte van 116 m² en een perceel van 524 m², biedt deze woning een overvloed aan natuurlijke lichtinval dankzij de grote glazen oppervlakken. De woning beschikt over drie slaapkamers, een badkamer en een apart toilet, ideaal voor gezinnen. De moderne architectuur met tijdloze uitstraling en de ruime terrassen bieden een privé en ontspannen leefomgeving. De woning is energiezuinig ontworpen met hoogwaardige materialen en biedt de mogelijkheid tot verdere afwerking naar wens van de koper. Gelegen in de regio Podravska, biedt de locatie gemakkelijke toegang tot openbaar vervoer en snelwegen, en ligt het dicht bij scholen, kinderdagverblijven en recreatiegebieden. Geniet van de nabijheid van de natuur en de rustige omgeving, terwijl u toch alle moderne gemakken binnen handbereik heeft.

€217.357

Locatie

Kaart wordt geladen...