Moderne gezinswoning in Draženci met uitstekende indeling

€269.000
📍 Locatie: Draženci, Ptuj
🗺️ Regio: Podravska
🛏️ Slaapkamers: 3
🚿 Badkamer: 1
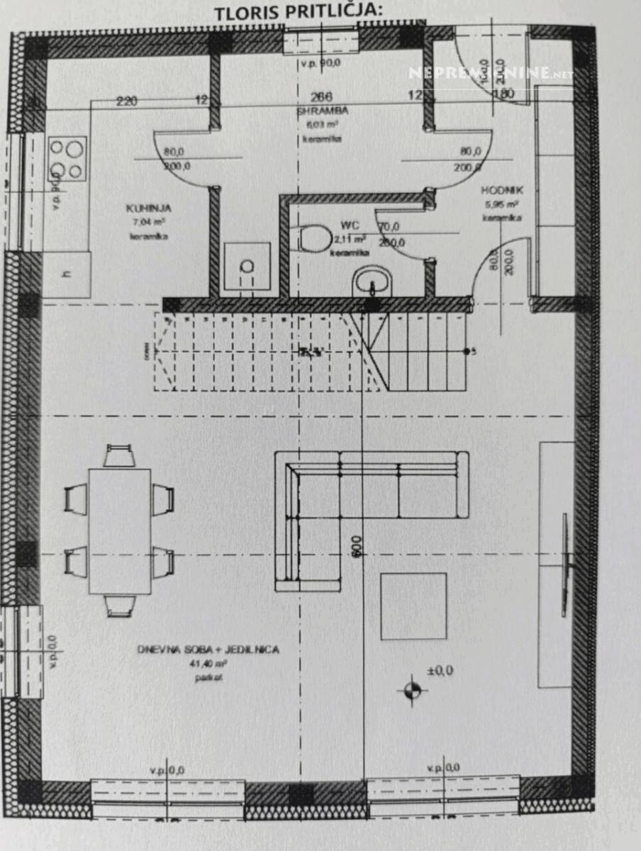
📏 Woonoppervlakte: 139 m²
🏗️ Bouwjaar: 2025
Energielabel: A

In het rustige en goed georganiseerde dorp Draženci bij Ptuj, bieden we vier moderne gezinswoningen aan. Deze nieuwbouw woningen zijn ontworpen als halfvrijstaande huizen met een enkelzijdig dak, verdeeld over twee verdiepingen (begane grond en eerste verdieping). De woningen bieden een doordachte indeling, hoge functionaliteit en comfort voor modern gezinsleven. Draženci biedt een ideale balans tussen landelijke rust en nabijheid van stedelijke voorzieningen. Slechts 2,5 km van de snelweg, met snelle toegang tot Ptuj, een historische stad met tal van culturele en recreatieve mogelijkheden, en Hajdina/Hajdoše, een vriendelijke en snel ontwikkelende gemeenschap met scholen, kinderdagverblijven, sportvelden, winkels en een actief sociaal leven. Elke woning heeft een netto oppervlakte van 127 m² en percelen variërend van 260 tot 290 m². De lichte en luchtige ruimtes zijn ontworpen met comfort en kwaliteit van leven in gedachten. Grote glazen oppervlakken in de woonkamer zorgen voor veel natuurlijk licht en verbinden de leefruimte met een ruime terras en tuin. De indeling maakt een duidelijke scheiding tussen het woon- en slaapgedeelte mogelijk, wat de privacy vergroot. De buitenkant biedt twee eigen parkeerplaatsen op een geplaveide oprit, een installatie voor een elektrische laadpaal en een buitenkraan op het terras, ideaal voor tuinieren of zomerse ontspanning. De omgeving biedt een aangename en veilige woonomgeving met veel groene ruimtes in de buurt. Mogelijkheden voor fietsen, wandelen, spelen voor kinderen en andere activiteiten in de natuur zijn praktisch voor de deur. De locatie is ideaal voor iedereen die rust zoekt, maar toch dicht bij alle benodigde infrastructuur wil zijn.

€269.000

Locatie

Kaart wordt geladen...