Moderne gezinswoning in Sinja Gorica

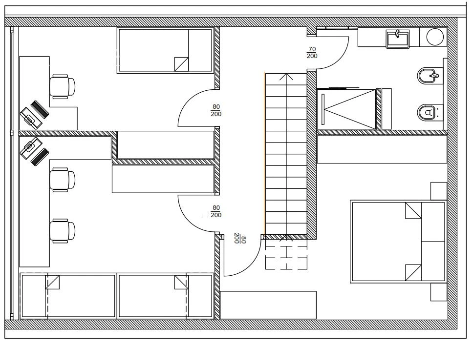
In het charmante en rustige dorp Sinja Gorica, nabij Vrhnika, staat een moderne helft van een rijtjeshuis te koop. Ontworpen door het gerenommeerde architectenbureau Sadar+Vuga, biedt deze woning een eigentijdse uitstraling, hoogwaardige bouwmaterialen en een zeer functionele indeling die comfortabel wonen in harmonie met de natuur mogelijk maakt. De woning beschikt over een overdekte parkeerplaats voor twee voertuigen en een ruime berging. De begane grond is ontworpen als een open en lichte leefruimte waar de keuken, eetkamer en woonkamer naadloos in elkaar overgaan. Vanuit de woonkamer is er toegang tot een atrium met terras, ideaal voor gezellige bijeenkomsten of ontspannen middagen in de buitenlucht. Op de bovenverdieping bevinden zich drie ruime slaapkamers en een grote badkamer. De hoge plafonds, tot wel 4 meter, bieden de mogelijkheid om een galerij in te richten, perfect voor een kantoor, speelkamer of ontspanningshoek. De zichtbare houten balken geven de ruimte een warme en comfortabele sfeer. Gebouwd met duurzame materialen zoals aluminium ramen en een eterniet dak, is de woning ontworpen met het oog op duurzaamheid en lage woonkosten. Momenteel is de woning nog in aanbouw, wat betekent dat het interieur naar eigen wens kan worden aangepast. De rijtjeswoning wordt verkocht in de derde bouwfase. Het dorp beschikt over een gezamenlijke waterzuiveringsinstallatie, wat bijdraagt aan duurzaam wonen. In de nabijheid bevinden zich een school, kleuterschool en openbaar vervoer, en Ljubljana is slechts enkele minuten rijden. Ondanks de nabijheid van alle voorzieningen biedt de wijk veel rust, privacy en een gevoel van verbondenheid met de natuur.
Locatie
Deel dit object
Tags
Pages
Bedrijfsgegevens
T: +31 (0)6-41416144
E: info@slovenievastgoed.nl



