Moderne nieuwbouw appartement in Ljubljana Bežigrad

€237.784
📍 Locatie: Ljubljana Bežigrad, Ljubljana
🗺️ Regio: Ljubljana (stad)
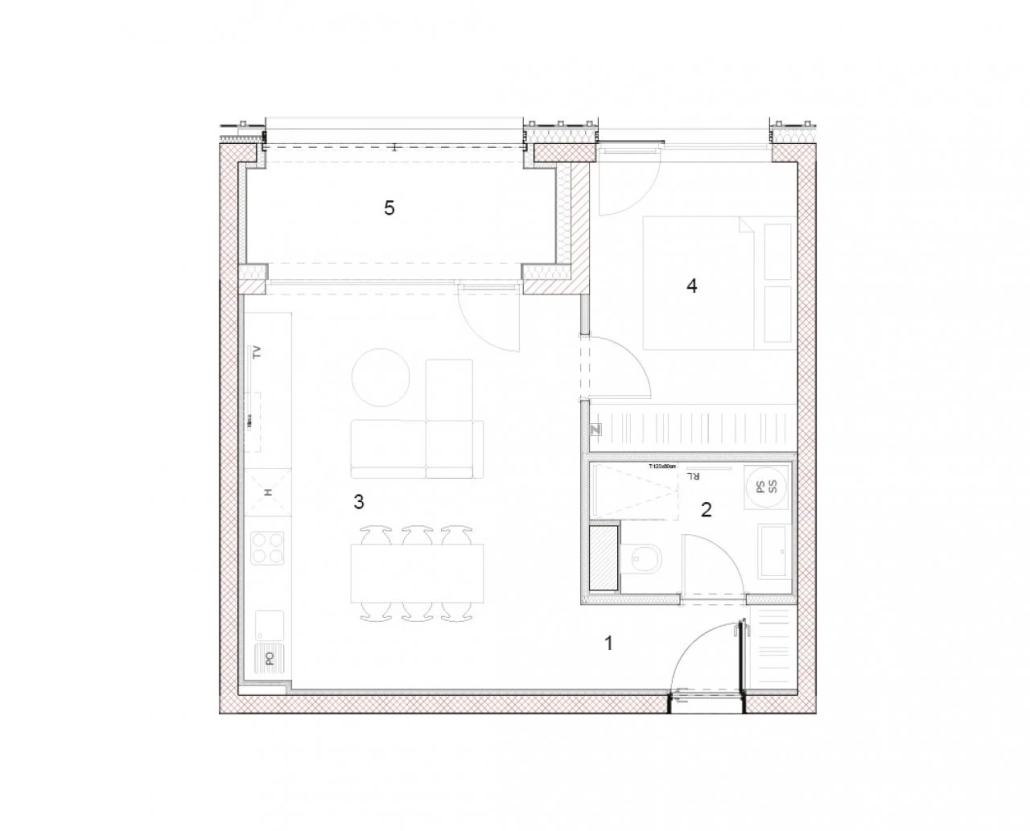
🛏️ Slaapkamer: 1
🚿 Badkamer: 1
📏 Woonoppervlakte: 54 m²
🏗️ Bouwjaar: 2025

Ontdek het moderne appartement in de nieuwe wijk Novi Bežigrad, gelegen op de historische locatie van de oude Bežigrad drukkerij. Dit appartement van 54,19 m² biedt een lichte en ruime leefruimte met een prachtig uitzicht op de Julische Alpen. De wijk is ontworpen met een groene visie, met veel groenvoorzieningen en grote glazen oppervlakken die zorgen voor veel natuurlijk licht. De hoogwaardige materialen garanderen een lange levensduur en weerstand tegen toekomstige milieu-invloeden. Geniet van de nabijheid van het stadscentrum van Ljubljana, met gemakkelijke toegang tot winkels, restaurants en openbaar vervoer. De oplevering van de appartementen is gepland voor de zomer van 2028.

€237.784

Locatie

Kaart wordt geladen...