Moderne nieuwbouw appartement in Ljubljana Bežigrad

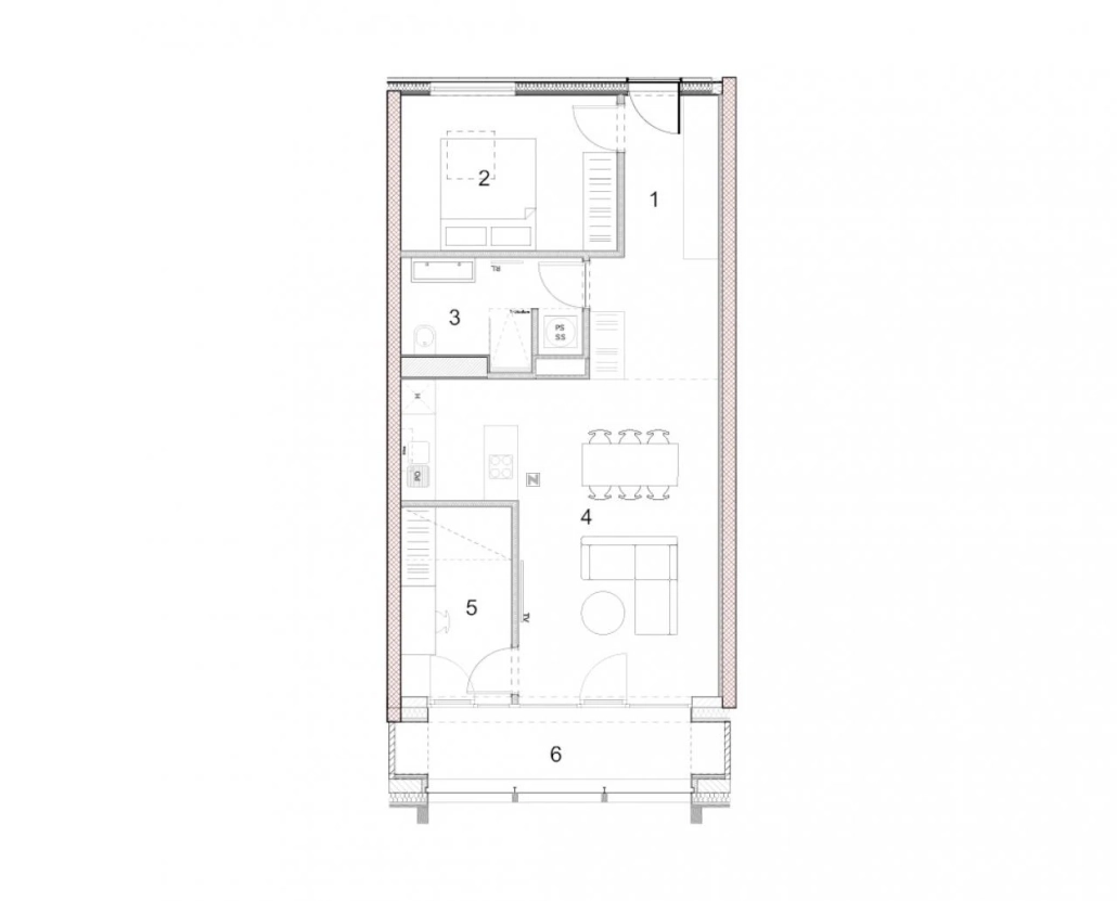
Ontdek het moderne leven in de nieuwe woonwijk Novi Bežigrad, gelegen op de historische locatie van de oude Bežigrad drukkerij. Dit prachtige 3-kamer appartement van 77,48 m² biedt een lichte en luchtige leefruimte met grote glazen oppervlakken die een adembenemend uitzicht bieden op de majestueuze Julische Alpen. De wijk is ontworpen met een groene visie, met terrassen en groene ruimtes die zorgen voor een frisse lucht en een aangename temperatuur. De hoogwaardige materialen garanderen een lange levensduur en weerstand tegen toekomstige milieu-invloeden. Geniet van de nabijheid van het bruisende stadsleven van Ljubljana, met gemakkelijke toegang tot winkels, restaurants en openbaar vervoer. De oplevering van de appartementen is gepland voor de zomer van 2028.
Locatie
Deel dit object
Tags
Pages
Bedrijfsgegevens
T: +31 (0)6-41416144
E: info@slovenievastgoed.nl



