Moderne nieuwbouw woning in Vaše bij Medvode

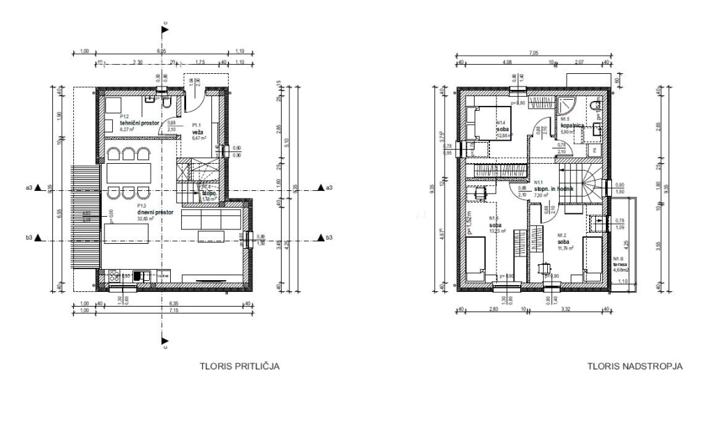
Ontdek deze prachtige moderne nieuwbouw woning in het rustige en groene dorp Vaše bij Medvode. Deze vrijstaande woning, met een woonoppervlakte van 98,23 m², biedt een perfecte combinatie van comfort en stijl. De woning is ontworpen over twee verdiepingen (begane grond + eerste verdieping) en beschikt over een eigen tuin en twee privé parkeerplaatsen direct naast het pand. De locatie biedt snelle toegang tot Medvode en alle essentiële voorzieningen zoals winkels, scholen, en recreatieve paden. De woning is voorzien van vloerverwarming, een eigen lucht-water warmtepomp, en een centraal ventilatiesysteem met warmteterugwinning. Voor extra comfort is er een ingebouwde airconditioning en zijn de ramen voorzien van elektrisch bedienbare jaloezieën of rolluiken. De woning is energiezuinig ontworpen met lage operationele kosten en biedt de mogelijkheid voor een zonne-energie installatie en een oplaadstation voor elektrische voertuigen. Geniet van de nabijheid van de natuur, recreatiegebieden, en gemakkelijke toegang tot het openbaar vervoer en de snelweg. Deze woning is ideaal voor gezinnen en biedt een uitstekende kans voor investeerders die op zoek zijn naar een woning in een opkomende regio.
Locatie
Deel dit object
Tags
Pages
Bedrijfsgegevens
T: +31 (0)6-41416144
E: info@slovenievastgoed.nl


