Moderne Rijtjeshuis in Rudnik, Ljubljana

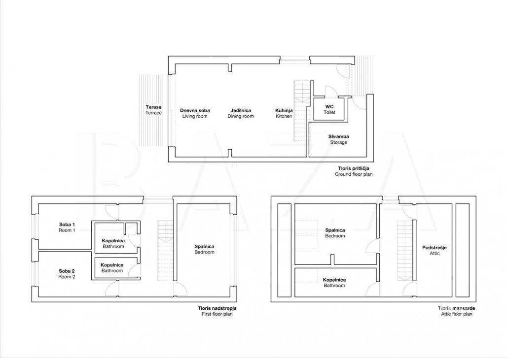
Ontdek deze moderne rijtjeshuis in de rustige wijk Rudnik, Ljubljana. Deze nieuwbouw biedt een perfecte balans tussen stedelijk gemak en natuurlijke rust. Met een totale oppervlakte van 213 m², waarvan 145,2 m² woonruimte, biedt deze woning een functionele indeling over drie verdiepingen. Geniet van de nabijheid van scholen, winkels, restaurants en recreatieve paden langs de Ljubljanica. De woning beschikt over een terras, tuin en twee eigen parkeerplaatsen. Ideaal voor gezinnen en investeerders die op zoek zijn naar een hoogwaardige nieuwbouw op een gewilde locatie. De woning wordt verwarmd met een moderne warmtepomp en vloerverwarming. Neem contact op met agent Katja Sraka voor meer informatie.
Locatie
Deel dit object
Tags
Pages
Bedrijfsgegevens
T: +31 (0)6-41416144
E: info@slovenievastgoed.nl



