Moderne Rijtjeshuis in Rustige Buurt van Ljubljana

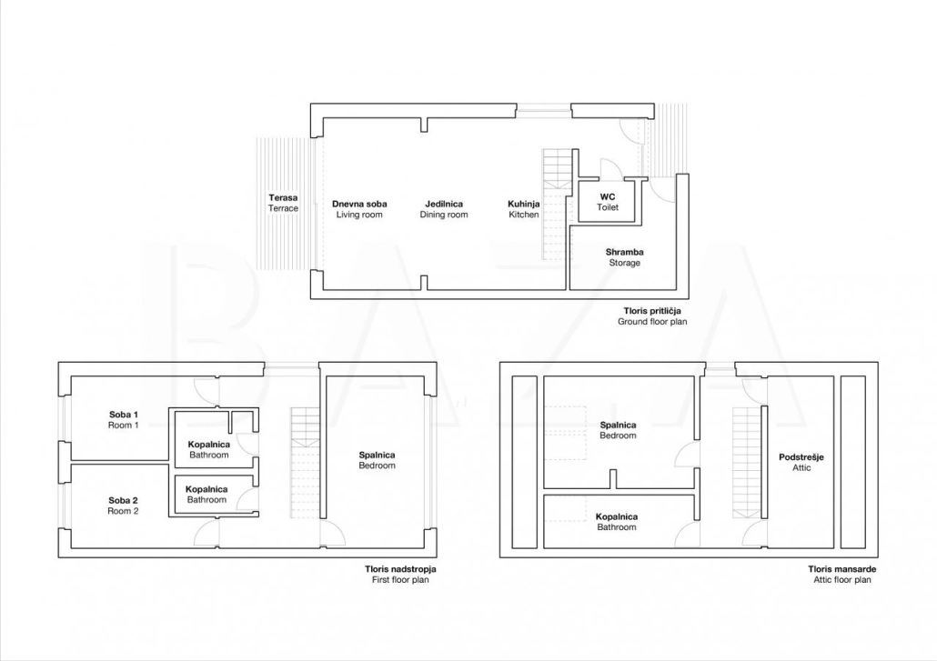
Deze moderne rijtjeshuis, gelegen in de rustige wijk Trnovsko predmestje in Ljubljana, biedt een perfecte balans tussen stedelijk gemak en natuurlijke rust. Met een totale oppervlakte van 213 m², waarvan 145,2 m² woonruimte, is deze woning ideaal voor gezinnen en veeleisende kopers. De woning beschikt over vier slaapkamers, drie badkamers, een ruime woonkamer met open keuken en eetkamer, en een prachtige tuin met terras. De locatie biedt gemakkelijke toegang tot scholen, winkels, banken, postkantoren en recreatieve paden langs de Ljubljanica. Bovendien is er een snelle toegang tot de ringweg en het winkelcentrum Rudnik. De woning wordt gebouwd tot de derde bouwfase, met moderne voorzieningen zoals vloerverwarming en een warmtepomp. De regio Ljubljana staat bekend om zijn rijke culturele erfgoed en biedt tal van toeristische attracties zoals het kasteel van Ljubljana en het Tivoli Park. Mis deze kans niet om te investeren in een van de meest gewilde locaties in Ljubljana.
Locatie
Deel dit object
Tags
Pages
Bedrijfsgegevens
T: +31 (0)6-41416144
E: info@slovenievastgoed.nl



