Moderne Vrijstaande Woning in Latkova Vas

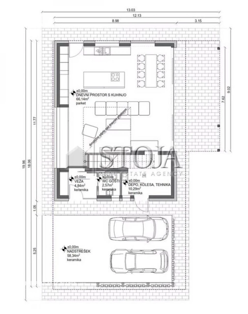
Ontdek deze moderne en architectonisch verfijnde vrijstaande woning in het rustige Latkova Vas, gelegen in een doodlopende straat van een nieuw boutique wooncomplex met vier huizen. Deze woning biedt een eigentijdse levensstijl met een snelle toegang tot de snelwegverbinding Šempeter, waardoor zowel Ljubljana als Maribor gemakkelijk bereikbaar zijn. De nieuwbouw, die in 2022 is begonnen, heeft een totale netto oppervlakte van 266 m² en een perceel van 715 m². De woning is verdeeld over twee verdiepingen en biedt een doordachte indeling van ruimtes en hoogwaardige materialen. Het gelijkvloers is gewijd aan de woonruimte met een open en lichte woonkamer, keuken en eetkamer, met toegang tot het terras en de tuin. De eerste verdieping omvat drie kinderkamers, een slaapkamer, twee badkamers, een wasruimte en een extra multifunctionele ruimte. De woning is gebouwd met een gewapend betonnen constructie en bakstenen vullingen, met speciale aandacht voor energie-efficiëntie en duurzaamheid. De omgeving biedt een rustige landelijke sfeer met nabijgelegen voorzieningen zoals een basisschool, kleuterschool, muziekschool, gezondheidscentrum, apotheek, postkantoor en winkels. Geniet van de voordelen van een rustige landelijke omgeving gecombineerd met logistieke efficiëntie voor dagelijkse pendelreizen. Kopers betalen geen makelaarskosten. Bezoek deze prachtige woning en ervaar het zelf!
Locatie
Deel dit object
Tags
Pages
Bedrijfsgegevens
T: +31 (0)6-41416144
E: info@slovenievastgoed.nl



