Moderne Vrijstaande Woning in Zabovci

€294.000
📍 Locatie: Zabovci, nabij Ptuj
🗺️ Regio: Podravska
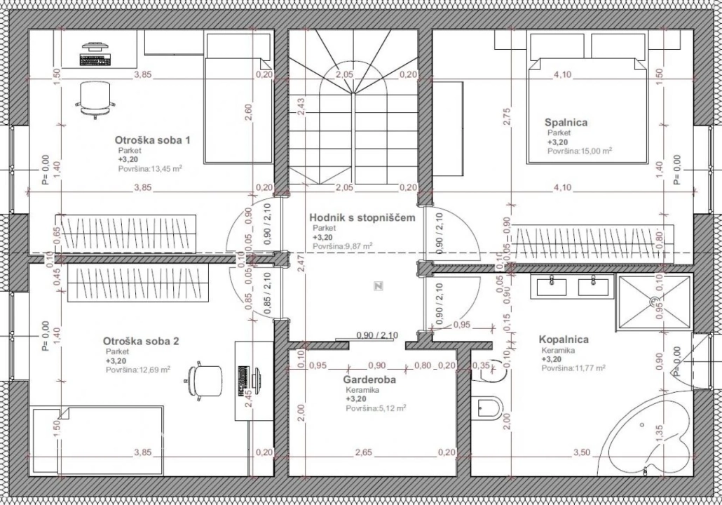
🛏️ Slaapkamers: 3
🚿 Badkamers: 2
📏 Woonoppervlakte: 136 m²
🏗️ Bouwjaar: 2024

Deze moderne vrijstaande woning in Zabovci biedt een unieke kans voor kwaliteitsvol wonen in een functioneel ontworpen huis met lage operationele kosten. Gelegen op slechts enkele minuten rijden van Ptuj, biedt de nabijheid van het Ptuj-meer ontspanningsmogelijkheden op vele wandelpaden en een ontsnapping aan het dynamische stadsleven. Ondanks de idyllische ligging in een natuurlijke omgeving, biedt de locatie snelle toegang tot alle belangrijke infrastructuur, zoals scholen, kinderdagverblijven, winkels, postkantoren en bibliotheken. De woning is gebouwd in 2024 en beschikt over een perceel van 502 m². Het huis heeft een klassieke bakstenen constructie met hoogwaardige PVC-ramen en driedubbele beglazing. De woning is voorzien van vloerverwarming op een warmtepomp, rekuperatie, en voorbereid voor airconditioning, alarm, intercom en videobewaking. De regio Podravska staat bekend om zijn rijke geschiedenis en culturele bezienswaardigheden, zoals het kasteel van Ptuj en de thermale baden. De nabijheid van de snelweg biedt uitstekende vervoersmogelijkheden. Dit is een uitzonderlijke kans voor iedereen die op zoek is naar een kwaliteitsvolle woning op een uitstekende locatie.

€294.000

Locatie

Kaart wordt geladen...