Prachtig bouwgrond met bouwvergunning in Vrhnika

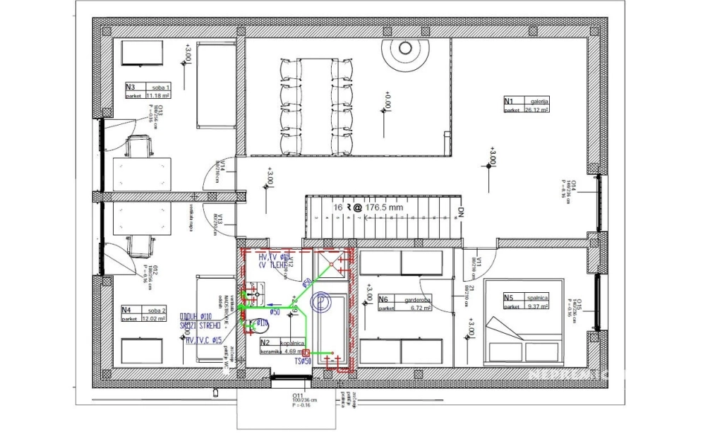
Dit prachtige bouwgrond van 1.185 m² is gelegen in een rustige en zonnige omgeving in Vrhnika, op slechts 8 km van het stadscentrum. Het perceel beschikt over een rechtsgeldige bouwvergunning voor een moderne eengezinswoning van 161 m², verdeeld over twee verdiepingen. De woning is ontworpen met ruime, open leefruimtes op de begane grond en een galerij op de bovenverdieping, wat zorgt voor lichte en zonnige kamers. De locatie biedt veel privacy en is omgeven door nieuwere huizen, met een goede verbinding naar belangrijke infrastructuur en voorzieningen zoals scholen en sportfaciliteiten. Vrhnika is een charmante stad met een rijke geschiedenis en biedt tal van recreatieve mogelijkheden, waaronder wandel- en fietspaden. De nabijheid van de hoofdstad Ljubljana maakt het een aantrekkelijke locatie voor zowel wonen als investeren.
Locatie
Deel dit perceel
Tags
Pages
Bedrijfsgegevens
T: +31 (0)6-41416144
E: info@slovenievastgoed.nl



