Prachtig bouwland in Zgornja Kungota

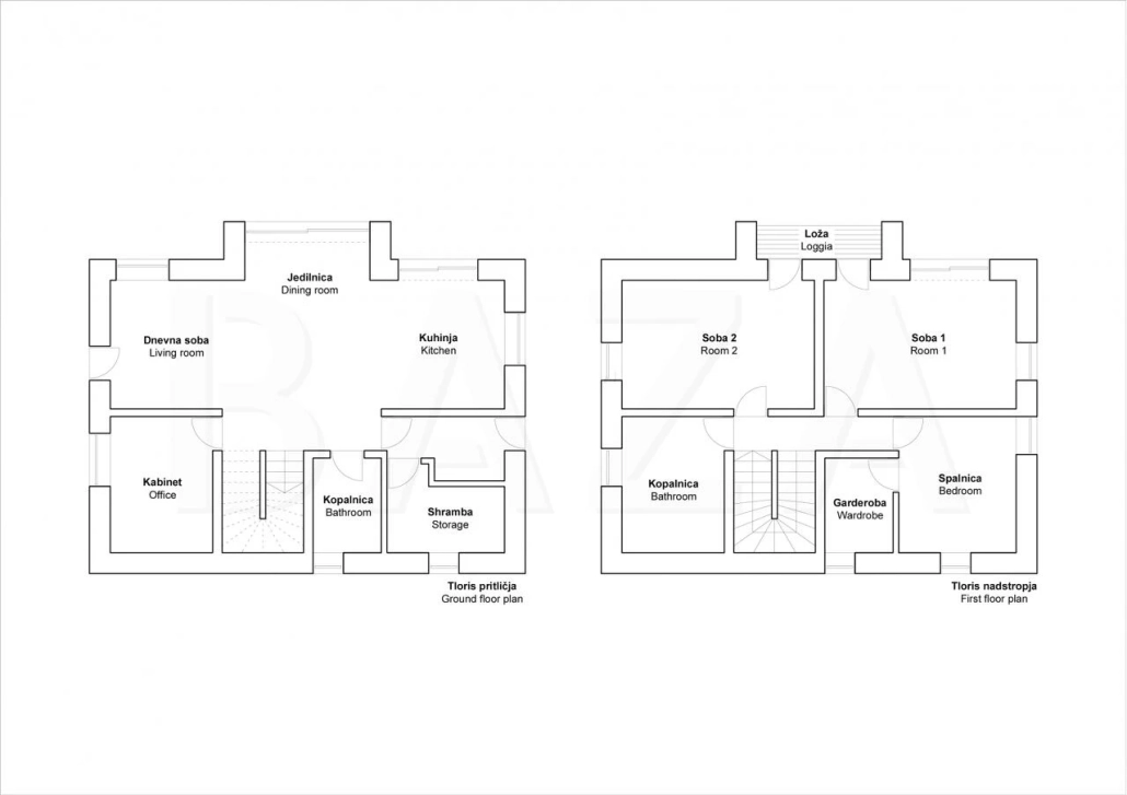
Ontdek dit prachtige bouwland in Zgornja Kungota, gelegen in de snelgroeiende en populaire gemeente Podravska. Dit perceel van 2.860 m² biedt een unieke kans om een droomhuis te bouwen in een rustige omgeving. De regio staat bekend om zijn uitstekende infrastructuur en snelle toegang tot zowel Oostenrijk als Maribor. Op slechts enkele minuten afstand vindt u diverse voorzieningen zoals een postkantoor, apotheek, kleuterschool, school, dokter en bakkerij. Het perceel is al ontwikkeld tot de derde bouwfase en beschikt over een netto oppervlakte van 146,58 m². De woning is ontworpen met een begane grond en een zolder, waarbij de begane grond een open woonruimte, keuken, eetkamer en een apart toilet omvat. De zolder is bedoeld voor slaapkamers en een badkamer. Gebouwd met Ytong-blokken van 40 cm dik, is het pand voorzien van vloerverwarming met lucht/water warmtepomp en een grijze dakbedekking. Alle benodigde vergunningen zijn verkregen en bijdragen zijn betaald. De regio Podravska biedt prachtige toeristische attracties en een scala aan voorzieningen, waardoor het een ideale locatie is voor investeerders.
Locatie
Deel dit perceel
Tags
Pages
Bedrijfsgegevens
T: +31 (0)6-41416144
E: info@slovenievastgoed.nl



