Prachtige nieuwbouw woning in Topolšica

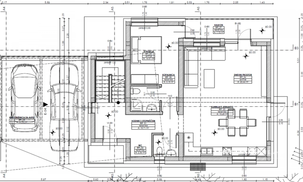
Ontdek deze prachtige nieuwbouw woning in het rustige dorpje Topolšica, gelegen in de regio Savinjska. Deze vrijstaande woning biedt een uitstekende indeling en is gelegen op een zonnig perceel van 804 m², perfect voor een gezin dat op zoek is naar een hoge levenskwaliteit. De woning is bijna voltooid en biedt de mogelijkheid tot sleutelklare afwerking. De woning beschikt over een plat dak volgens het Sika-systeem, PVC-ramen, Inotherm-ingangsdeuren, een 20 cm isolerende gevel, vloerverwarming en een 10 kW warmtepomp. De woning is aangesloten op het openbare riool- en elektriciteitsnetwerk. De indeling omvat een hal, stookruimte, WC, bijkeuken, badkamer, garderobe, twee kinderkamers en een slaapkamer op de eerste verdieping. Op de tweede verdieping vindt u een hal, WC, keuken met eetkamer, woonkamer, badkamer, slaapkamer en balkon. De locatie biedt een rustige woonomgeving met nabijgelegen voorzieningen zoals een basisschool, kleuterschool, winkel en kuuroord. Topolšica is een charmant dorpje dat bekend staat om zijn thermale baden en prachtige natuur, ideaal voor natuurliefhebbers en investeerders die op zoek zijn naar een vredige omgeving.
Locatie
Deel dit object
Tags
Pages
Bedrijfsgegevens
T: +31 (0)6-41416144
E: info@slovenievastgoed.nl



