Ruim en modern appartement in Trebnje

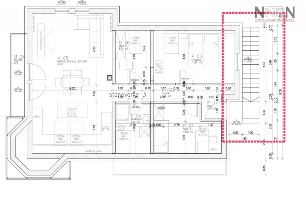
Dit prachtige 3,5-kamer appartement in Trebnje biedt een moderne en energiezuinige leefomgeving. Gelegen in een rustige wijk, biedt het appartement een netto vloeroppervlakte van 96,3 m² en een gebruiksoppervlakte van 91 m². Het appartement bevindt zich op de tweede verdieping van een gebouw dat is gebouwd volgens moderne en energiezuinige richtlijnen. Het beschikt over een atrium van 40 m², een balkon van 5,3 m² en twee eigen parkeerplaatsen. De indeling omvat een hal, badkamer met toilet, slaapkamer, twee kinderkamers of een kinderkamer en een studeerkamer, keuken met eetkamer en woonkamer met toegang tot het balkon. De ligging is ideaal voor natuurliefhebbers en biedt een prachtig uitzicht op het heuvelachtige landschap. De nabijheid van Trebnje zorgt voor een uitstekende verbinding met de stad en alle benodigde voorzieningen zoals scholen, winkels en openbaar vervoer. Het appartement is voorzien van vloerverwarming, een warmtepomp en centrale ventilatie met een rekuperatiesysteem. De ramen zijn van PVC met driedubbele beglazing en er is voorbereiding voor airconditioning. Beschikbaar vanaf eind november 2025.
Locatie
Deel dit object
Tags
Pages
Bedrijfsgegevens
T: +31 (0)6-41416144
E: info@slovenievastgoed.nl



