Ruim en modern driekamerappartement in Ajdovščina

Ontdek het moderne en ruime driekamerappartement in het rustige gebied van Šturje in Ajdovščina.
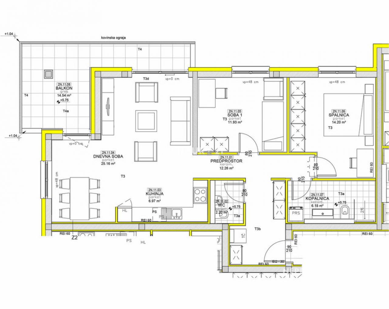
Dit nieuwbouwproject, genaamd ‘Razgledi nad Ajdovščino’, combineert klassieke architectuur met een moderne uitstraling en hoogwaardige materialen. Het appartement biedt een comfortabele en veilige leefomgeving met prachtige panoramische uitzichten over de Vipava-vallei. Het appartement beschikt over een woonoppervlakte van 100 m², een loggia en een terras dat gedeeltelijk overdekt kan worden. De grote glazen oppervlakken zorgen voor veel natuurlijk licht en een open uitzicht.
Het project biedt energie-efficiëntie (klasse A2–B1), ruime terrassen en balkons, een veilige overdekte parkeerplaats, gemeenschappelijke ruimtes voor sociale activiteiten en recreatie, en goed onderhouden groene ruimtes met speeltuinen.
De locatie is gunstig gelegen nabij scholen, winkels, medische voorzieningen en culturele en natuurlijke bezienswaardigheden.
De voltooiing van de bouw is gepland voor begin 2026.
Locatie
Deel dit object
Tags
Pages
Bedrijfsgegevens
T: +31 (0)6-41416144
E: info@slovenievastgoed.nl



