Ruime en functionele vrijstaande woning in Vino

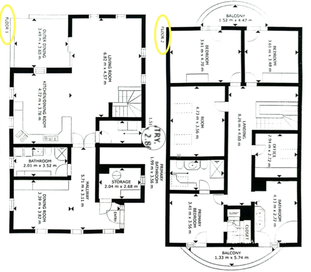
Op een rustige en zonnige locatie nabij Grosuplje bevindt zich deze ruime en functioneel ontworpen vrijstaande woning met een totale oppervlakte van 236,5 m², gelegen op een perceel van 2.360 m². Deze woning biedt een uitstekende kans voor iedereen die op zoek is naar kwalitatief wonen in de natuur, terwijl de nabijheid van stedelijke infrastructuur behouden blijft. De woning is doordacht gebouwd en biedt comfortabel wonen voor een groter gezin. De indeling omvat een begane grond met een ruime hal met multifunctionele ruimte, die kan worden omgebouwd tot een extra kamer, een stookruimte met wasruimte, een berging, een badkamer en een open woonruimte met keuken en eetkamer, die directe toegang biedt tot een overdekt terras en tuin. Op de bovenverdieping bevinden zich vier kinderkamers, waarvan er twee toegang hebben tot een balkon, een hoofdslaapkamer met eigen badkamer en kleedkamer, en een extra badkamer. De woning is klassiek gebouwd met een kwalitatief dak van baksteen, geïsoleerde gevel en thermisch geïsoleerde ramen. Verwarming wordt verzorgd door een warmtepomp en meerdere inverter airconditioners, wat zorgt voor energie-efficiëntie. Op het dak is een zonne-energiecentrale van 17 kW geïnstalleerd, wat zorgt voor lage energiekosten. Het interieur omvat moderne elektrische installaties met FIT-zekeringen en een driefasige stopcontact, evenals een ingebouwde tegelkachel die een aangename sfeer creëert. De buitenkant van de woning biedt een verzorgde binnenplaats met parkeerplaatsen, een dubbele carport met berging, een geplaveide oprit, een ruim terras met tuinhaard en een grote tuin met houten schuur. De locatie biedt directe nabijheid van de natuur, terwijl de toegang tot Grosuplje en de volledige infrastructuur eenvoudig en snel is. De schoolbus stopt in de buurt, en de basisschool en kleuterschool zijn ongeveer een kilometer verwijderd. De woning is volledig uitgerust en ontworpen om te worden omgebouwd tot twee aparte wooneenheden met eigen ingangen. Dit is een unieke kans voor iedereen die op zoek is naar een aangenaam huis in een natuurlijke omgeving met lage operationele kosten en moderne energieregelingen.
Locatie
Deel dit object
Tags
Pages
Bedrijfsgegevens
T: +31 (0)6-41416144
E: info@slovenievastgoed.nl


